

$254,900
114 Marianne Lane
Easley, SC 29642
About This Property
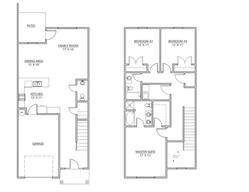
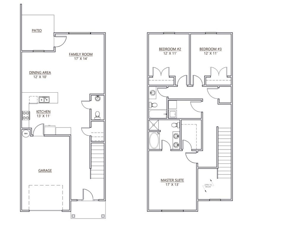
Check out 114 Marianne Lane, a beautifully designed townhome featuring three bedrooms, two and a half bathrooms, and a one-car garage. The open-concept layout is perfect for entertaining, ensuring you’re always part of the action. Upon entering, you'll be welcomed by a spacious foyer that leads into the living that features a glass door that seamlessly connects the indoors with the patio, enhancing your living experience. The kitchen provides ample storage and looks over the dining room area.
A conveniently located half bathroom is situated off the living room. Moving upstairs, you’ll find two bedrooms, which share a bathroom complete with a single vanity and tub. The upstairs laundry room is also ideally located for easy access. On the opposite side of the floor, the primary bedroom features privacy and comfort. The en-suite primary bathroom boasts a double vanity and a walk-in shower with glass panels. The spacious walk-in closet is perfect for additional storage.
The primary bedroom features a large window, filling the room with extra light. With its smart design, natural lighting, spacious layout, and modern finishes, this townhome is a wonderful place to call home. Pictures are representative.
WUM MLS # 1149636938
Quick Facts
Time on Site
4 months ago
Property Type
Residential
Year Built
2025
Lot Size
1,306 sqft
Property Details
Schools
Features & Amenities
Location & Map
Map View
Loading map...
Additional Information
Lot & Land
- CityLot
- Subdivision
Community & H O A
- MaintenanceGrounds
- MaintenanceStructure
Tax Information
Parking & Garage
- Attached
- Garage
- Driveway
- GarageDoorOpener
Property Details
- RadonMitigationSystem
- SmokeDetectors
Exterior Features
- Architectural
- Shingle
Interior Features
- Carpet
- LuxuryVinylPlank
- Vinyl
- Dishwasher
- ElectricOven
- ElectricRange
- Disposal
- GasWaterHeater
- Microwave
- CeilingFans
- DualSinks
- GardenTubRomanTub
- HighCeilings
- BathInPrimaryBedroom
- SmoothCeilings
- SolidSurfaceCounters
- SeparateShower
- CableTv
- UpperLevelPrimary
- WalkInClosets
- WalkInShower
Systems & Utilities
- CentralAir
- Electric
- ForcedAir
- Central
- ForcedAir
- Gas
Listing Agent Information
This information is deemed reliable, but not guaranteed. Neither, the Western Upstate Association of REALTORS®, Inc. or Western Upstate Multiple Listing Service of South Carolina Inc., nor the listing broker, nor their agents or subagents are responsible for the accuracy of the information. The buyer is responsible for verifying all information. This information is provided by the Western Upstate Association of REALTORS®, Inc. and Western Upstate Multiple Listing Service of South Carolina, Inc. for use by its members and is not intended for the use for any other purpose. Information is provided for consumers' personal, non-commercial use, and may not be used for any purpose other than the identification of potential properties for purchase. The data relating to real estate for sale on this Web site comes in part from the Broker Reciprocity Program of the Western Upstate Association of REALTORS®, Inc. and the Western Upstate Multiple Listing Service, Inc.


