



$496,547
000 Anderson Oaks Lane Lot 9
Easley, SC 29642
About This Property
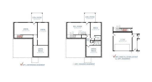
The Harlow floor plan at Anderson Oaks by Dream Finders Homes offers approximately 2,571 total square feet with a flexible layout designed to fit a variety of living needs. This home features 4–6 bedrooms and 2.5–4 bathrooms, along with a spacious upstairs loft providing additional living or entertainment space. The main level includes a well-appointed kitchen with a butler’s pantry, open to the family room with fireplace. A designated dining room is included, with the option to convert this space into a flex room or guest suite. The primary suite features a separate tub and tiled shower, along with generous space for comfort and convenience. Secondary bedrooms and bathrooms offer flexibility for guests, home office use, or additional living space. Also includes an upstairs loft.
This homesite backs up to the adjacent Southern Oaks Golf Course, offering a scenic backdrop.
The home includes an unfinished basement, with the option to complete the space for an additional cost, including the ability to add a kitchenette making the total sqft 3,655. Buyers have the opportunity to visit the design center to select available finishes, including flooring, countertops, cabinetry, lighting, and other interior features. Pricing reflects the base home and does not include optional upgrades, design selections, or basement completion.
WUM MLS # 1158550072
Quick Facts
Time on Site
3 days ago
Property Type
Residential
Year Built
2026
Lot Size
8,276 sqft
Property Details
Schools
Features & Amenities
Location & Map
Map View
Loading map...
Additional Information
Lot & Land
- OutsideCityLimits
- Other
- Subdivision
- SeeRemarks
- Trees
Community & H O A
- CommonAreas
- StreetLights
Tax Information
Parking & Garage
- Attached
- Garage
- Driveway
- GarageDoorOpener
Property Details
- Craftsman
- Traditional
- RadonMitigationSystem
- SmokeDetectors
Exterior Features
- Architectural
- Shingle
- Deck
- FrontPorch
- Patio
- Brick
- VinylSiding
- Deck
- Porch
- Patio
Interior Features
- Carpet
- LuxuryVinylPlank
- Tile
- BuiltInOven
- ConvectionOven
- Dishwasher
- GasCooktop
- Disposal
- GasWaterHeater
- Microwave
- TanklessWaterHeater
- PlumbedForIceMaker
- DiningRoom
- Loft
- Other
- Recreation
- CeilingFans
- DualSinks
- Fireplace
- GraniteCounters
- GardenTubRomanTub
- HighCeilings
- BathInPrimaryBedroom
- Other
- PullDownAtticStairs
- QuartzCounters
- SeeRemarks
- SmoothCeilings
- CableTv
- UpperLevelPrimary
- WalkInClosets
- WalkInShower
- Loft
Listing Information
Systems & Utilities
- CentralAir
- Electric
- ForcedAir
- Central
- Gas
Listing Agent Information
This information is deemed reliable, but not guaranteed. Neither, the Western Upstate Association of REALTORS®, Inc. or Western Upstate Multiple Listing Service of South Carolina Inc., nor the listing broker, nor their agents or subagents are responsible for the accuracy of the information. The buyer is responsible for verifying all information. This information is provided by the Western Upstate Association of REALTORS®, Inc. and Western Upstate Multiple Listing Service of South Carolina, Inc. for use by its members and is not intended for the use for any other purpose. Information is provided for consumers' personal, non-commercial use, and may not be used for any purpose other than the identification of potential properties for purchase. The data relating to real estate for sale on this Web site comes in part from the Broker Reciprocity Program of the Western Upstate Association of REALTORS®, Inc. and the Western Upstate Multiple Listing Service, Inc.


