




$467,937
4195 Rosebrook Court 082
Denver, NC 28037
About This Property
This Property Has Been Sold
This property sold 1 year ago and is no longer available for purchase.
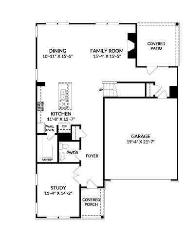
View active listings in Stratford →Discover our latest floor plan beautifully situated on a cul-de-sac homesite. This home showcases a gourmet kitchen with a gas cooktop, a stainless steel hood that vents outside, and a wall oven and microwave. The generous island and quartz countertops enhance both style and functionality.
The warm family room is accentuated by a charming stone fireplace, offering a perfect spot to relax. The main level includes a guest bedroom and full bathroom, perfectly suited for accommodating overnight guests. Enjoy peaceful outdoor moments on the covered patio.
Upstairs, escape to the serene primary bedroom featuring a tray ceiling, walk-in closet, and an upgraded bathroom with a soaking tub and tiled shower. Two additional bedrooms upstairs provide ample storage with generous closets. The versatile flex room on this level works wonderfully as a second living area, playroom, game room, or extra home office space.
CAR MLS # 259337501
Quick Facts
Time on Site
2 years ago
Property Type
Residential
Year Built
2024
Price/Sq.Ft.
$171
Property Details
Schools
Features & Amenities
Features:
- Garden Tub
- Kitchen Island
- Open Floorplan
- Pantry
- Storage
- Walk-In Closet(s)
- Walk-In Pantry
Location & Map
Map View
Loading map...
Additional Information
Utilities
- County Sewer
- Cable Available
- County Water
Lot And Land
Agent Contacts
- Palmetto Park Realty Team Fort Mill: 803.548.6123
Interior Details
- Central
- Natural Gas
- Carpet
- Tile
- Vinyl
- Insulated Window(s)
- Laundry Room
- Upper Level
- Garden Tub
- Kitchen Island
- Open Floorplan
- Pantry
- Storage
- Walk-In Closet(s)
- Walk-In Pantry
- Carbon Monoxide Detector(s)
- Smoke Detector(s)
- Family Room
- Gas
Exterior Features
- Shingle
- Stone Veneer
- Vinyl
- Covered
- Patio
- Rear Porch
Parking And Garage
- Driveway
- Attached Garage
- Garage Faces Front
Financial Information
Dwelling And Structure
- Traditional
Basement And Foundation
- Slab
Zoning And Restrictions
Square Footage And Levels
- Two
Additional C A R Information
IDX information is provided exclusively for consumers' personal, non-commercial use only; it may not be used for any purpose other than to identify prospective properties consumers may be interested in purchasing. Data is deemed reliable but is not guaranteed accurate by the MLS GRID. Use of this site may be subject to an end user license agreement. Based on information submitted to the MLS GRID as of Fri, Dec 6, 2024. All data is obtained from various sources and may not have been verified by broker or MLS GRID. Supplied Open House Information is subject to change without notice. All information should be independently reviewed and verified for accuracy. Properties may or may not be listed by the office/agent presenting the information. Some IDX listings have been excluded from this website. Any use by you of search facilities of data on the site, other than by a consumer looking to purchase real estate, is prohibited. DMCA Notice: Palmetto Park Realty respects the intellectual property rights of others. If you believe that your work has been copied in a way that constitutes copyright infringement, please provide our designated agent with written notice containing the following information: (1) identification of the copyrighted work claimed to have been infringed; (2) identification of the material that is claimed to be infringing; (3) your contact information; (4) a statement that you have a good faith belief that use of the material is not authorized; and (5) a statement that the information in the notification is accurate and you are authorized to act on behalf of the copyright owner. Please send DMCA notices to: [email protected]
You Might Also Like...
Interested in selling in Stratford?