




$567,500
2352 Seagull Drive
Denver, NC 28037
About This Property
This Property Has Been Sold
This property sold 11 months ago and is no longer available for purchase.
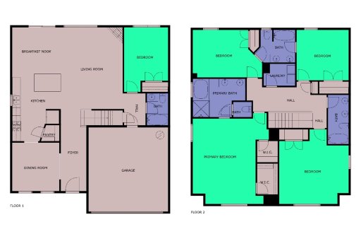
View active listings in Covington at Lake Norman →Welcome to this stunning & spacious 5BR/4BA home in the sought after community of Covington at Lake Norman. On the main floor you will love all the counter space in the gourmet kitchen w/large island w/Refrigerator included, oversized living room w/custom fireplace surround, dining room, breakfast nook, bedroom suite w/full bath, newer carpet up/down, drop zone & 2 car garage. Upstairs has a generously sized primary suite w/dual sink, garden tub w/separate shower, & 2 walk-in closets, 3 more BRs, 2 full bathrooms, & laundry with wash/dryer incl.
This home is designed for relaxation w/its custom cedar arbors, expansive patio w/fire pit, Irrigation, large hot tub w/pad. No expense was spared to make this home your place to reset. Community includes pool, water slides, club house, playground, & optional boat storage.
Fantastic Denver location, minutes to the shores of Lake Norman & convenient to Highway 16 w/easy access to Charlotte. 5 mins to Little Creek Access Area Public Boat Launch.
CAR MLS # 268388136
Quick Facts
Time on Site
1 year ago
Property Type
Residential
Year Built
2016
Price/Sq.Ft.
$198
Property Details
Schools
Features & Amenities
Features:
- Attic Stairs Pulldown
- Cable Prewire
- Hot Tub
- Kitchen Island
- Open Floorplan
- Pantry
- Walk-In Closet(s)
- Walk-In Pantry
Location & Map
Map View
Loading map...
Additional Information
Utilities
- Public Sewer
- Cable Available
- Cable Connected
- Electricity Connected
- Fiber Optics
- Natural Gas
- Phone Connected
- Underground Power Lines
- Underground Utilities
- Wired Internet Available
- City
Lot And Land
- Wooded
Agent Contacts
- Palmetto Park Realty Team Fort Mill: 803.548.6123
Interior Details
- Central
- Electric
- Forced Air
- Heat Pump
- Zoned
- Concrete
- Tile
- Vinyl
- Electric Dryer Hookup
- Laundry Room
- Upper Level
- Attic Stairs Pulldown
- Cable Prewire
- Hot Tub
- Kitchen Island
- Open Floorplan
- Pantry
- Walk-In Closet(s)
- Walk-In Pantry
- Gas
- Gas Log
- Living Room
Exterior Features
- Shingle
- Fire Pit
- In-Ground Irrigation
- Hardboard Siding
- Stone Veneer
- Covered
- Front Porch
Parking And Garage
- Driveway
- Attached Garage
- Garage Door Opener
- Garage Faces Front
Financial Information
Dwelling And Structure
- Traditional
Basement And Foundation
- Slab
Zoning And Restrictions
Square Footage And Levels
- Two
Additional C A R Information
IDX information is provided exclusively for consumers' personal, non-commercial use only; it may not be used for any purpose other than to identify prospective properties consumers may be interested in purchasing. Data is deemed reliable but is not guaranteed accurate by the MLS GRID. Use of this site may be subject to an end user license agreement. Based on information submitted to the MLS GRID as of Fri, May 23, 2025. All data is obtained from various sources and may not have been verified by broker or MLS GRID. Supplied Open House Information is subject to change without notice. All information should be independently reviewed and verified for accuracy. Properties may or may not be listed by the office/agent presenting the information. Some IDX listings have been excluded from this website. Any use by you of search facilities of data on the site, other than by a consumer looking to purchase real estate, is prohibited. DMCA Notice: Palmetto Park Realty respects the intellectual property rights of others. If you believe that your work has been copied in a way that constitutes copyright infringement, please provide our designated agent with written notice containing the following information: (1) identification of the copyrighted work claimed to have been infringed; (2) identification of the material that is claimed to be infringing; (3) your contact information; (4) a statement that you have a good faith belief that use of the material is not authorized; and (5) a statement that the information in the notification is accurate and you are authorized to act on behalf of the copyright owner. Please send DMCA notices to: [email protected]
You Might Also Like...
Interested in selling in Covington at Lake Norman?