




$334,900
4361 Saint Catherines Court
Concord, NC 28025
About This Property
This Property Has Been Sold
This property sold 3 years ago and is no longer available for purchase.
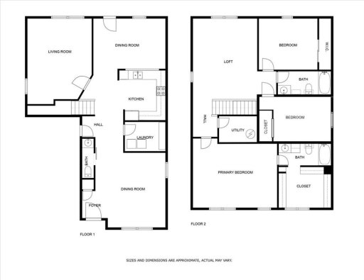
View active listings in Brandon Ridge →Welcome to your new dream home! This gorgeous 2-story property boasts a private fenced-in back yard, perfect for outdoor living and entertaining. Your welcomed by multiple family gathering areas on the main level, including a large great room with a dining area and a bonus room that can be used as an office, den or playroom.
The well-appointed kitchen is sure to please any home chef with its central location. A convenient laundry room and half bath complete the main level. Upstairs, you'll find a large loft area and a full bath, perfect for relaxing or accommodating guests.
The primary bedroom features a full bath and a fantastic large walk-in closet. Two additional bedrooms that will provide plenty of room for family or guests. Conveniently located just a short drive to shopping, restaurants, and downtown Concord, this property also offers easy access to Highway 49 and I-85, making commuting a breeze.
CAR MLS # 114808063
Quick Facts
Time on Site
3 years ago
Property Type
Residential
Year Built
2005
Price/Sq.Ft.
$141
Property Details
Schools
Features & Amenities
Location & Map
Map View
Loading map...
Additional Information
Utilities
- Public Sewer
- City
Lot And Land
- Back Yard
- Cleared
Agent Contacts
- Palmetto Park Realty Team Fort Mill: 803.548.6123
Interior Details
- Central
- Natural Gas
- Electric Dryer Hookup
- Laundry Room
- Main Level
- Washer Hookup
Exterior Features
- Vinyl
- Enclosed
- Patio
- Porch
- Screened
Parking And Garage
- Driveway
- Attached Garage
Financial Information
Basement And Foundation
- Slab
Zoning And Restrictions
Square Footage And Levels
- Two
Additional C A R Information
IDX information is provided exclusively for consumers' personal, non-commercial use only; it may not be used for any purpose other than to identify prospective properties consumers may be interested in purchasing. Data is deemed reliable but is not guaranteed accurate by the MLS GRID. Use of this site may be subject to an end user license agreement. Based on information submitted to the MLS GRID as of Sat, May 6, 2023. All data is obtained from various sources and may not have been verified by broker or MLS GRID. Supplied Open House Information is subject to change without notice. All information should be independently reviewed and verified for accuracy. Properties may or may not be listed by the office/agent presenting the information. Some IDX listings have been excluded from this website. Any use by you of search facilities of data on the site, other than by a consumer looking to purchase real estate, is prohibited. DMCA Notice: Palmetto Park Realty respects the intellectual property rights of others. If you believe that your work has been copied in a way that constitutes copyright infringement, please provide our designated agent with written notice containing the following information: (1) identification of the copyrighted work claimed to have been infringed; (2) identification of the material that is claimed to be infringing; (3) your contact information; (4) a statement that you have a good faith belief that use of the material is not authorized; and (5) a statement that the information in the notification is accurate and you are authorized to act on behalf of the copyright owner. Please send DMCA notices to: [email protected]
You Might Also Like...
Interested in selling in Brandon Ridge?