




$599,400
265 Corrie Ann Drive
About This Property
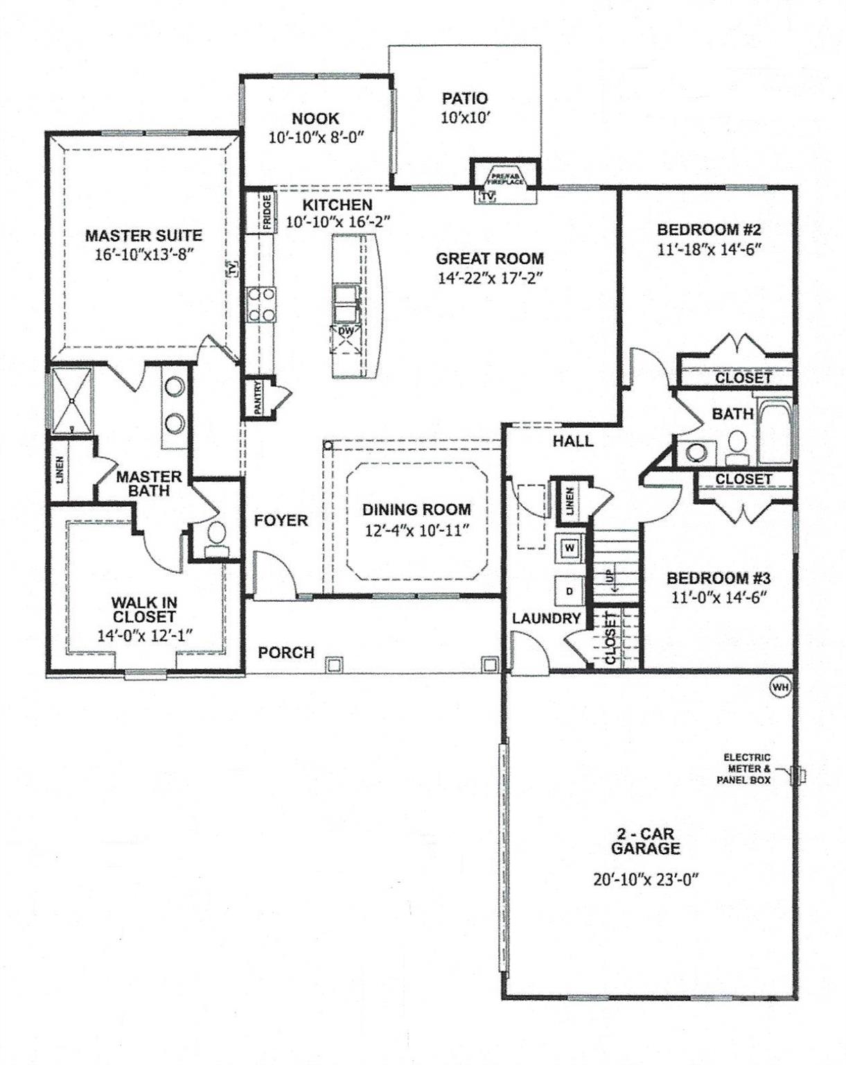
Welcome to Hannahs Meadow, Concord’s newest single-family home community, offering a prime location on Pitts School Road. Residents can enjoy spacious living with generous 1/3-acre + home sites, providing ample space for outdoor activities and privacy. The Stephen Floor Plan features an open-concept main level for flexible living, the optional 3-car garage, and Bonus/Bedroom #4, which are already included in this build.
Popular options like a powder room, sunroom, screened rear porch, and a full bathroom next to Bedroom #4 are available and more! The Builder offers the option to customize floor plans to suit your preferences and requirements. This service provides flexibility in the design and layout of your space, ensuring it aligns with your unique needs and vision.
Quick Facts
Time on Site
4 days ago
Property Type
Residential
Year Built
2026
Price/Sq.Ft.
$256
Property Details
Schools
Features & Amenities
Location & Map
Map View
Loading map...
Additional Information
Utilities
- Public Sewer
- Cable Available
- Natural Gas
- City
Lot And Land
- Level
Agent Contacts
- Palmetto Park Realty Team Fort Mill: 803.548.6123
Interior Details
- Central
- Carpet
- Linoleum
- Insulated Window(s)
- Electric Dryer Hookup
- Laundry Room
- Upper Level
- Attic Stairs Pulldown
- Carbon Monoxide Detector(s)
- Smoke Detector(s)
- Gas Log
- Living Room
Exterior Features
- Architectural Shingle
- Fiber Cement
- Stone Veneer
- Vinyl
- Front Porch
- Patio
Parking And Garage
- Driveway
- Attached Garage
- Garage Faces Side
Financial Information
Dwelling And Structure
- Arts and Crafts
Basement And Foundation
- Slab
Zoning And Restrictions
Square Footage And Levels
- One and One Half
Additional C A R Information
IDX information is provided exclusively for consumers' personal, non-commercial use only; it may not be used for any purpose other than to identify prospective properties consumers may be interested in purchasing. Data is deemed reliable but is not guaranteed accurate by the MLS GRID. Use of this site may be subject to an end user license agreement. Based on information submitted to the MLS GRID as of Sun, Feb 8, 2026. All data is obtained from various sources and may not have been verified by broker or MLS GRID. Supplied Open House Information is subject to change without notice. All information should be independently reviewed and verified for accuracy. Properties may or may not be listed by the office/agent presenting the information. Some IDX listings have been excluded from this website. Any use by you of search facilities of data on the site, other than by a consumer looking to purchase real estate, is prohibited. DMCA Notice: Palmetto Park Realty respects the intellectual property rights of others. If you believe that your work has been copied in a way that constitutes copyright infringement, please provide our designated agent with written notice containing the following information: (1) identification of the copyrighted work claimed to have been infringed; (2) identification of the material that is claimed to be infringing; (3) your contact information; (4) a statement that you have a good faith belief that use of the material is not authorized; and (5) a statement that the information in the notification is accurate and you are authorized to act on behalf of the copyright owner. Please send DMCA notices to: [email protected]