




$382,580
1910 Old Rivers Road
Concord, NC 28027
About This Property
This Property Has Been Sold
This property sold 10 months ago and is no longer available for purchase.
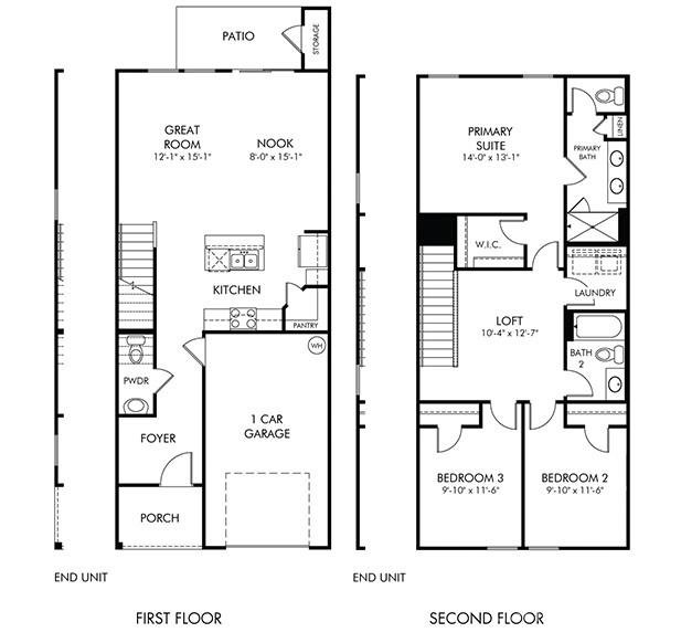
View active listings in Childers Park →Brand new, energy-efficient home available by May 2025! Invite friends over to watch the big game in the spacious second-story loft. The primary suite features dual sinks and a large walk-in closet.
Downstairs, the kitchen island overlooks the great room and dining area. Located in Concord, our two-story townhomes offer energy-efficient features and low-maintenance living with stunning amenities including a pool and cabana. Whether exploring shops at Afton Ridge or taking a quick drive into the city of Charlotte, homeowners will experience the best that Concord has to offer.
Tour the area today and see why you can call Childers Park Townes home. Each of our homes is built with innovative, energy-efficient features designed to help you enjoy more savings, better health, real comfort and peace of mind.
CAR MLS # 273724598
Quick Facts
Time on Site
1 year ago
Property Type
Residential
Year Built
2025
Price/Sq.Ft.
$239
Property Details
Schools
Features & Amenities
Features:
- Attic Stairs Pulldown
- Kitchen Island
- Walk-In Closet(s)
- Walk-In Pantry
Location & Map
Map View
Loading map...
Additional Information
Utilities
- Public Sewer
- City
Lot And Land
Agent Contacts
- Palmetto Park Realty Team Fort Mill: 803.548.6123
Interior Details
- Central
- ENERGY STAR Qualified Equipment
- Fresh Air Ventilation
- Heat Pump
- Carpet
- Hardwood
- Tile
- Vinyl
- Inside
- Upper Level
- Attic Stairs Pulldown
- Kitchen Island
- Walk-In Closet(s)
- Walk-In Pantry
Exterior Features
- Shingle
- Brick Partial
- Stone Veneer
- Vinyl
Parking And Garage
- Driveway
- Garage Door Opener
Financial Information
Dwelling And Structure
- Advanced Framing
- Engineered Wood Products
- Spray Foam Insulation
Basement And Foundation
- Slab
Zoning And Restrictions
Square Footage And Levels
- Two
Additional C A R Information
IDX information is provided exclusively for consumers' personal, non-commercial use only; it may not be used for any purpose other than to identify prospective properties consumers may be interested in purchasing. Data is deemed reliable but is not guaranteed accurate by the MLS GRID. Use of this site may be subject to an end user license agreement. Based on information submitted to the MLS GRID as of Fri, May 16, 2025. All data is obtained from various sources and may not have been verified by broker or MLS GRID. Supplied Open House Information is subject to change without notice. All information should be independently reviewed and verified for accuracy. Properties may or may not be listed by the office/agent presenting the information. Some IDX listings have been excluded from this website. Any use by you of search facilities of data on the site, other than by a consumer looking to purchase real estate, is prohibited. DMCA Notice: Palmetto Park Realty respects the intellectual property rights of others. If you believe that your work has been copied in a way that constitutes copyright infringement, please provide our designated agent with written notice containing the following information: (1) identification of the copyrighted work claimed to have been infringed; (2) identification of the material that is claimed to be infringing; (3) your contact information; (4) a statement that you have a good faith belief that use of the material is not authorized; and (5) a statement that the information in the notification is accurate and you are authorized to act on behalf of the copyright owner. Please send DMCA notices to: [email protected]
You Might Also Like...
Interested in selling in Childers Park?