




$2,895
10205 Falling Leaf Drive
About This Property
This Property Has Been Sold
This property sold 2 months ago and is no longer available for purchase.
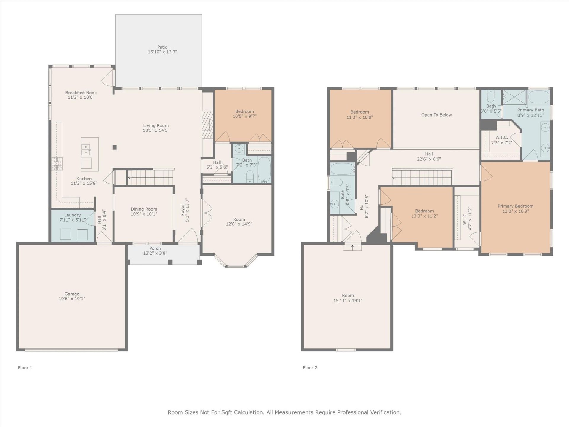
View active listings in Winding Walk →Step into this popular 2-story floor plan that’s filled with natural light and thoughtfully designed spaces. The main level features a guest bedroom and full bath, perfect for visitors or flexible living.
Enjoy a formal living room with elegant French doors, ideal for a home office or additional lounge space. The great room boasts soaring 2-story ceilings, creating an open and airy atmosphere that connects beautifully to the heart of the home.
Upstairs, the expansive bonus room offers endless possibilities—media room, playroom, or home gym. The primary suite features his-and-hers walk-in closets, providing ample storage and comfort. Beautiful hardwood floors throughout the main level add warmth and style.
Quick Facts
Time on Site
4 months ago
Property Type
ResidentialLease
Year Built
2012
Price/Sq.Ft.
$1
Property Details
Schools
Features & Amenities
Location & Map
Map View
Loading map...
Additional Information
Utilities
- Public Sewer
- Fiber Optics
- Natural Gas
- City
Lot And Land
- Fenced
Agent Contacts
- Palmetto Park Realty Team Fort Mill: 803.548.6123
Interior Details
- Central
- Forced Air
- Natural Gas
- Carpet
- Hardwood
- Tile
- Electric Dryer Hookup
- Main Level
- Attic Stairs Pulldown
- Cable Prewire
- Garden Tub
- Walk-In Closet(s)
- Carbon Monoxide Detector(s)
- Gas
- Great Room
Exterior Features
- Patio
- Porch
Parking And Garage
- Driveway
- Attached Garage
Financial Information
Dwelling And Structure
- Transitional
Basement And Foundation
- Slab
Zoning And Restrictions
Square Footage And Levels
- Two
Additional C A R Information
IDX information is provided exclusively for consumers' personal, non-commercial use only; it may not be used for any purpose other than to identify prospective properties consumers may be interested in purchasing. Data is deemed reliable but is not guaranteed accurate by the MLS GRID. Use of this site may be subject to an end user license agreement. Based on information submitted to the MLS GRID as of Tue, Nov 25, 2025. All data is obtained from various sources and may not have been verified by broker or MLS GRID. Supplied Open House Information is subject to change without notice. All information should be independently reviewed and verified for accuracy. Properties may or may not be listed by the office/agent presenting the information. Some IDX listings have been excluded from this website. Any use by you of search facilities of data on the site, other than by a consumer looking to purchase real estate, is prohibited. DMCA Notice: Palmetto Park Realty respects the intellectual property rights of others. If you believe that your work has been copied in a way that constitutes copyright infringement, please provide our designated agent with written notice containing the following information: (1) identification of the copyrighted work claimed to have been infringed; (2) identification of the material that is claimed to be infringing; (3) your contact information; (4) a statement that you have a good faith belief that use of the material is not authorized; and (5) a statement that the information in the notification is accurate and you are authorized to act on behalf of the copyright owner. Please send DMCA notices to: [email protected]