




$255,000
313 Sandy Run Drive
Columbia, SC 29203
About This Property
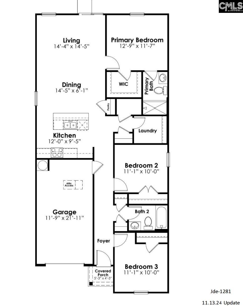
Welcome to the Devon at 313 Sandy Run Drive in Northeast Columbia, SC! This floorplan features a functional open concept floorplan. There are 3 bedrooms and 2 bathrooms all conveniently located on one level.
You will find ample cabinet space in the kitchen with gray cabinetry and beautiful granite countertops. Windows throughout allow in warm natural lighting for an inviting touch. The primary suite is also impressive with an en-suite primary bathroom and walk-in closet.
The location of this home is ideally situated near Northeast + Downtown Columbia, along with a quick commute to Fort Jackson. The upcoming Scout Motors plant and the Town of Blythewood are just down the road from Grand Oaks. You also don't want to miss the resort style swimming pool amenity here in the community!
COL MLS # 626292
Quick Facts
Time on Site
1 month ago
Property Type
Residential
Year Built
2026
Lot Size
6,098 sqft
Price/Sq.Ft.
$199
Property Details
Schools
Features & Amenities
Features:
- Garage Opener
Location & Map
Map View
Loading map...
Additional Information
Lot & Land
Room Details
- Eat In
- Island
- Pantry
- Counter Tops-Granite
- Floors-Vinyl
- Cabinets-Painted
Primary Suite
- Double Vanity
- Bath-Private
- Closet-Walk in
- Closet-Private
- Floors - Carpet
Interior Details
- Free-standing
- Gas
- Dishwasher
- Disposal
- Dryer
- Refrigerator
- Washer
- Microwave Above Stove
- Tankless H20
- Gas Water Heater
Parking & Garage
- Garage Attached
- Front Entry
Exterior Features
- Brick-Partial-AbvFound
- Vinyl
Property Overview
Utilities & Systems
Listing Agent Information
Details provided by Consolidated MLS and may not match the public record. Learn more. The information is being provided by Consolidated Multiple Listing Service, Inc. Information deemed reliable but not guaranteed. Information is provided for consumers' personal, non-commercial use, and may not be used for any purpose other than the identification of potential properties for purchase. © 2025 Consolidated Multiple Listing Service, Inc. All Rights Reserved.


