




$219,999
142 Winding Chestnut Drive
Columbia, SC 29053-5555
About This Property
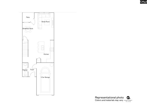
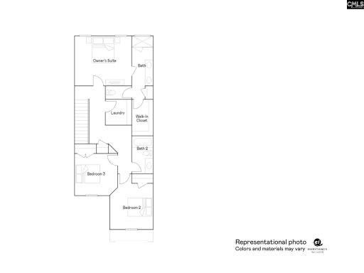
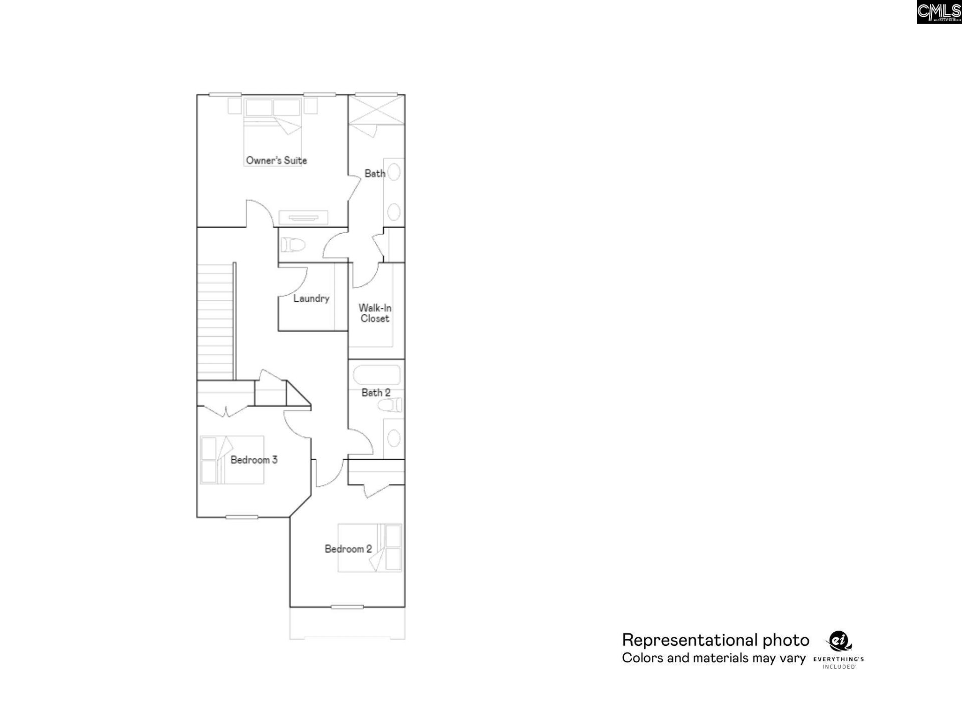
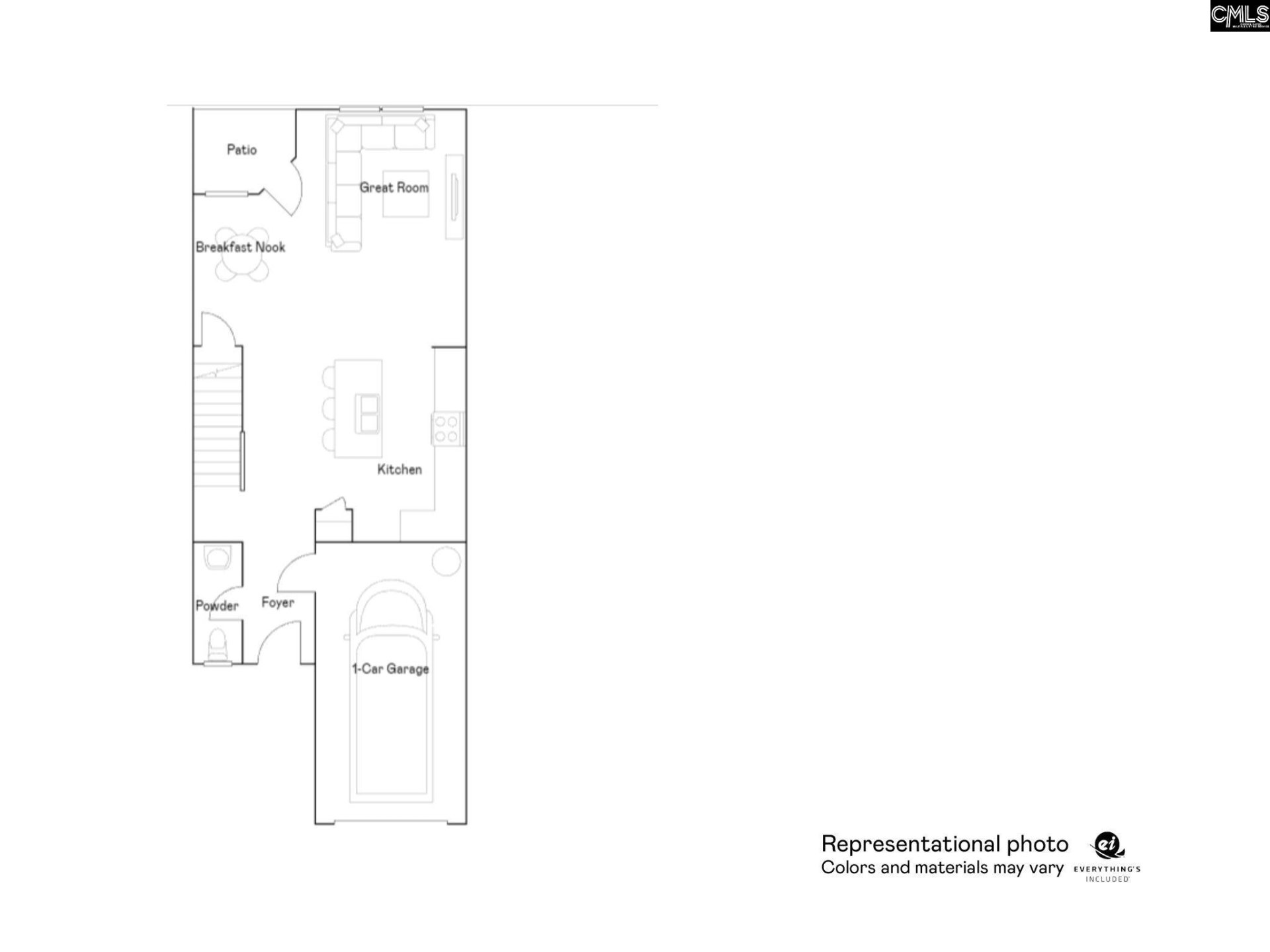
Move In Ready! Nature lovers, welcome to your stunning NEW 3-bedroom, 2.5-bath Aspen interior plan, perfectly situated for easy commuting in Columbia and nearby Irmo, SC.
This brand new community is tucked into an established neighborhood that houses attractions like river access, boat ramps, fishing, hiking, community events. Enjoy the convenience of nearby shopping, Riverbanks Zoo, River Walk Park, and just a 20-minute drive to downtown Columbia. your new home features elegant quartz countertops in the kitchen and baths and wood-inspired vinyl plank flooring throughout the first floor.
The open kitchen has spacious counters, an expansive island, and modern stainless-steel appliances, including a gas stove, microwave and dishwasher. All bedrooms are located on the second floor for privacy from the main level and the large owner’s suite even allows space for a king size bed. Your owners suite includes double vanity, a full walk in closet, and spacious walk-in shower.
COL MLS # 625715
Quick Facts
Time on Site
3 months ago
Property Type
Residential
Year Built
2025
Lot Size
2,744 sqft
Price/Sq.Ft.
$149
Property Details
Schools
Features & Amenities
Features:
- Garage Opener
- Smoke Detector
- Attic Pull-Down Access
- Attic Access
Location & Map
Address
142 Winding Chestnut Drive, Columbia, SC 29053-5555
Community
Chestnut Hill Plantation - The Point
Map View
Loading map...
Additional Information
Laundry
- Electric
- Heated Space
- Utility Room
Lot & Land
Room Details
- Eat In
- Island
- Pantry
- Backsplash-Tiled
- Cabinets-Painted
- Recessed Lights
- Counter Tops-Quartz
- Floors-Luxury Vinyl Plank
- Recessed Lights
- Floors-Luxury Vinyl Plank
Miscellaneous
- Cable TV Available
- Recreation Facility
- Tennis Courts
- Community Pool
- Warranty (New Const) Bldr
- Sidewalk Community
Primary Suite
- Double Vanity
- Bath-Private
- Separate Shower
- Closet-Walk in
- Closet-Private
- Recessed Lighting
- Floors - Carpet
- Floors-Luxury Vinyl Plank
Interior Details
- Dishwasher
- Disposal
- Refrigerator
- Microwave Above Stove
- Stove Exhaust Vented Exte
- Tankless H20
- Gas Water Heater
- Garage Opener
- Smoke Detector
- Attic Pull-Down Access
- Attic Access
Parking & Garage
- Garage Attached
- Front Entry
Exterior Features
- Sprinkler
- Gutters - Full
- Back Porch - Covered
- Stone
- Vinyl
H O A & Association
- Back Yard Maintenance
- Cable TV
- Common Area Maintenance
- Front Yard Maintenance
- Pool
Property Overview
Utilities & Systems
- Gas 1st Lvl
- Gas 2nd Lvl
Listing Agent Information
Details provided by Consolidated MLS and may not match the public record. Learn more. The information is being provided by Consolidated Multiple Listing Service, Inc. Information deemed reliable but not guaranteed. Information is provided for consumers' personal, non-commercial use, and may not be used for any purpose other than the identification of potential properties for purchase. © 2025 Consolidated Multiple Listing Service, Inc. All Rights Reserved.


