




$235,999
104 Winding Chestnut Drive
Columbia, SC 29212-5555
About This Property
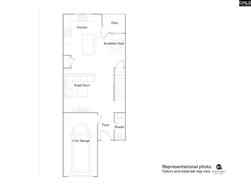
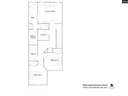
Move-In Ready! Discover the Cedar Plan at The Point at Chestnut Hills Place—a stunning new construction 3-bedroom, 2.5-bath home designed for those who appreciate both modern living and natural surroundings.
Located in a brand-new community nestled within an established neighborhood near Columbia and Irmo, SC, this home offers the perfect balance of convenience, comfort, and outdoor access. Ideal for commuters and nature lovers alike, this home is just 20 minutes from downtown Columbia and close to Riverbanks Zoo, River Walk Park, shopping, dining, and more. The surrounding community features nearby river access, boat ramps, fishing spots, hiking trails, and seasonal events, providing endless recreational opportunities.
Inside, the home showcases a modern design with wood-inspired vinyl plank flooring throughout the main floor. The open-concept kitchen features elegant quartz countertops, a spacious center island, and stainless steel appliances, including a gas stove, microwave, and dishwasher. The thoughtful layout places all three bedrooms on the second floor for enhanced privacy.
COL MLS # 631610
Quick Facts
Time on Site
16 days ago
Property Type
Residential
Year Built
2025
Lot Size
2,744 sqft
Price/Sq.Ft.
$159
Property Details
Schools
Features & Amenities
Features:
- Garage Opener
- Smoke Detector
- Attic Pull-Down Access
- Attic Access
Location & Map
Address
104 Winding Chestnut Drive, Columbia, SC 29212-5555
Community
Chestnut Hill Plantation - The Point
Map View
Loading map...
Additional Information
Laundry
Lot & Land
Room Details
- Eat In
- Island
- Pantry
- Backsplash-Tiled
- Cabinets-Painted
- Recessed Lights
- Counter Tops-Quartz
- Floors-Luxury Vinyl Plank
- Recessed Lights
- Floors-Luxury Vinyl Plank
Miscellaneous
- Cable TV Available
- Recreation Facility
- Community Pool
- Warranty (New Const) Bldr
- Sidewalk Community
Primary Suite
- Double Vanity
- Bath-Private
- Separate Shower
- Closet-Walk in
- Closet-Private
- Recessed Lighting
- Floors - Carpet
- Floors-Luxury Vinyl Plank
Interior Details
- Dishwasher
- Disposal
- Microwave Above Stove
- Stove Exhaust Vented Exte
- Tankless H20
- Gas Water Heater
- Garage Opener
- Smoke Detector
- Attic Pull-Down Access
- Attic Access
Parking & Garage
- Garage Attached
- Front Entry
Exterior Features
- Sprinkler
- Gutters - Full
- Back Porch - Covered
- Stone
- Vinyl
H O A & Association
- Back Yard Maintenance
- Cable TV
- Common Area Maintenance
- Front Yard Maintenance
Property Overview
Utilities & Systems
- Gas 1st Lvl
- Gas 2nd Lvl
Listing Agent Information
Details provided by Consolidated MLS and may not match the public record. Learn more. The information is being provided by Consolidated Multiple Listing Service, Inc. Information deemed reliable but not guaranteed. Information is provided for consumers' personal, non-commercial use, and may not be used for any purpose other than the identification of potential properties for purchase. © 2025 Consolidated Multiple Listing Service, Inc. All Rights Reserved.


