




$325,000
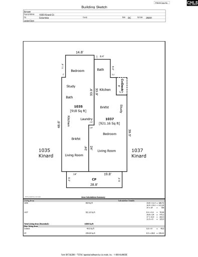
1035 Kinard Court
Columbia, SC 29201
About This Property
Charming duplex in the highly desirable Elmwood Park neighborhood, just minutes from the University of South Carolina! Each side features a well-appointed 1-bedroom, 1-bath layout. Enjoy the flexibility to live in one unit while renting the other to offset your mortgage, or easily convert the property back into a single-family home to suit your needs.
Currently the right side (1037) is a long term rental and the left side (1035) is AirBNB. Nestled in a walkable community with convenient access to downtown Columbia, dining, and local attractions, this property is perfect for investors, students, or owner-occupants alike. Don’t miss this rare opportunity in one of Columbia’s most sought-after areas!
Transferable AirBNB permits in hand. Disclaimer: CMLS has not reviewed and, therefore, does not endorse vendors who may appear in listings.
COL MLS # 629444
Quick Facts
Time on Site
17 days ago
Property Type
ResidentialIncome
Year Built
1925
Price/Sq.Ft.
$177
Property Details
Schools
Features & Amenities
Location & Map
Map View
Loading map...
Additional Information
Property Overview
Listing Agent Information
Details provided by Consolidated MLS and may not match the public record. Learn more. The information is being provided by Consolidated Multiple Listing Service, Inc. Information deemed reliable but not guaranteed. Information is provided for consumers' personal, non-commercial use, and may not be used for any purpose other than the identification of potential properties for purchase. © 2025 Consolidated Multiple Listing Service, Inc. All Rights Reserved.


