


$344,000
7014 Fairview Falls Drive
Chesnee, SC 29323
About This Property
This Property Has Been Sold
This property sold 6 months ago and is no longer available for purchase.
View active listings in Fairview Falls →BACK ON THE MARKET! MOVE IN READY! This inviting home will impress you with its exceptional features.
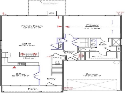
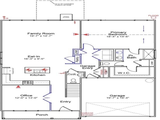
Luxury vinyl plank flooring runs throughout the main level. The entryway boasts French doors that lead to a spacious home office, providing plenty of privacy. Entertaining will be easy with the open-concept common areas.
The kitchen features granite countertops, shaker-style cabinetry, and gas appliances, and it overlooks the large family room, which is a perfect place to relax in front of the fireplace. This area also offers a view of the covered back porch and the wooded backyard. The owner's suite, conveniently located on the main level, is your personal oasis, complete with a vaulted ceiling, dual vanities, a five-foot shower, and a walk-in closet.
SPN MLS # 324052
Quick Facts
Time on Site
11 months ago
Property Type
Residential
Year Built
2025
Lot Size
27,878 sqft
Price/Sq.Ft.
$142
Property Details
Schools
Features & Amenities
Features:
- Cathedral Ceiling(s)
- Ceilings-Some 9 Ft +
- Attic Stairs Pulldown
- Walk-In Closet(s)
- Ceiling - Smooth
- Open Floorplan
Location & Map
Map View
Loading map...
Additional Information
Basement
Community
- Common Areas
- Street Lights
Lot & Land
- Some Trees
- Wooded
Primary Suite
- Bath - Full
- Double Vanity
- Multiple Closets
- Owner on Main Level
- Shower Only
- Walk-in Closet
Interior Details
- Carpet
- Luxury Vinyl
- Dishwasher
- Disposal
- Gas Cooktop
- Electric Oven
- Microwave
- Attic
- Breakfast Area
- Loft
- Main Fl Master Bedroom
- Office/Study
- Tilt-Out
- 1st Floor
- Walk-In
- Cathedral Ceiling(s)
- Ceilings-Some 9 Ft +
- Attic Stairs Pulldown
- Walk-In Closet(s)
- Ceiling - Smooth
- Open Floorplan
New Construction
Parking & Garage
- 2 Car Attached
- Garage Door Opener
- Keypad Entry
Exterior Features
- Architectural
- Attic
- Garage
- Slab
- Vinyl Siding
- Patio
- Porch
- Covered Patio
H O A & Association
- Common Area
- Street Lights
Property Overview
- Two
- Contemporary
Utilities & Systems
- Septic Tank
- Central Air
- Private
Listing Agent Information
You Might Also Like...
Interested in selling in Fairview Falls?

