



$389,000
419 Dodger Avenue
Chesnee, SC 29323
About This Property
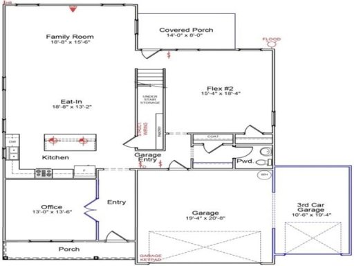
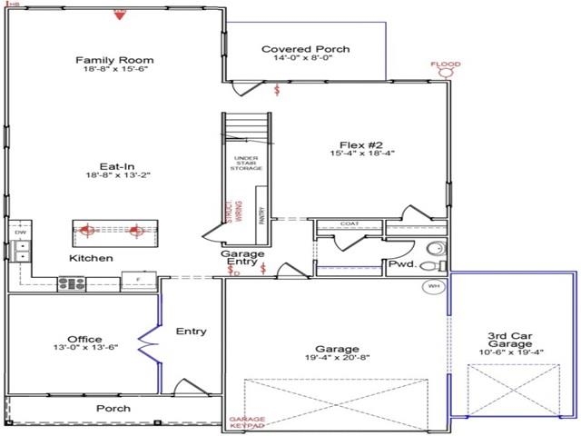
This stunning home is sure to impress with its many features! As you enter, you’ll notice the luxury vinyl plank flooring that flows throughout the main level. The large office is an ideal space for a home office or play area.
The open concept layout is perfect for entertaining guests. The upgraded kitchen boasts granite countertops, stainless steel appliances, and shaker-style cabinetry. It seamlessly overlooks the family room, which has views of the spacious backyard lined with trees.
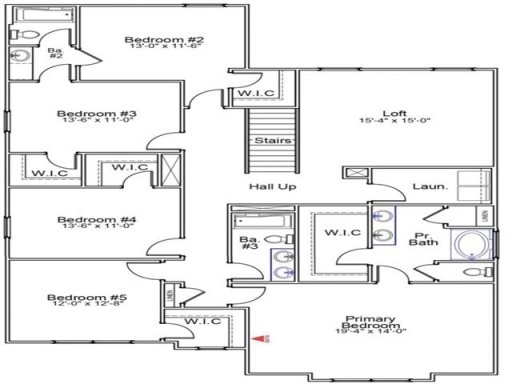
Additionally, the downstairs flex room is perfect for a formal dining area or extra space for gatherings. Upstairs, you’ll find a welcoming loft that adds extra space for movie nights. Two of the bedrooms share a convenient en suite bathroom, while the other two share a hall bath.
SPN MLS # 331299
Quick Facts
Time on Site
4 months ago
Property Type
Residential
Year Built
2025
Lot Size
23,086 sqft
Price/Sq.Ft.
$111
Property Details
Schools
Features & Amenities
Features:
- Ceilings-Some 9 Ft +
- Attic Stairs Pulldown
- Walk-In Closet(s)
- Open Floorplan
- Walk-In Pantry
Location & Map
Map View
Loading map...
Additional Information
Basement
Community
- Common Areas
- Street Lights
Lot & Land
- Some Trees
Primary Suite
- Bath - Full
- Double Vanity
- Owner on 2nd level
- Shower Only
- Walk-in Closet
Interior Details
- Carpet
- Luxury Vinyl
- Dishwasher
- Microwave
- Electric Oven
- Attic
- Bonus
- Breakfast Area
- Loft
- Office/Study
- Tilt-Out
- 2nd Floor
- Walk-In
- Ceilings-Some 9 Ft +
- Attic Stairs Pulldown
- Walk-In Closet(s)
- Open Floorplan
- Walk-In Pantry
New Construction
Parking & Garage
- 3 Car Attached
- Garage Door Opener
- Driveway
- Keypad Entry
Exterior Features
- Architectural
- Attic
- Garage
- Slab
- Vinyl Siding
- Porch
- Covered Patio
H O A & Association
- Common Area
- Street Lights
Property Overview
- Two
- Contemporary
Utilities & Systems
- Septic Tank
- Central Air
- Forced Air
- Available


