



$354,796
2116 Maggie Acres Road
Chesnee, SC 29323
About This Property
This Property Has Been Sold
This property sold 2 years ago and is no longer available for purchase.
View active listings in Maggie Acres →This beautiful Telfair Floor Plan sits on 0.57 acres homesite. It has an open concept with the living area adjacent to the open kitchen.
The kitchen has a large walk-in pantry, granite countertops, pendant lights over the Kitchen Island, upgraded shaker style cabinets, and is attached to both a formal dining room, as well as an informal eat-in area that flows directly into the great room. Downstairs there is a spacious private office as well as a half bath.From the eat-in area you are viewing a very Large back yard through the Covered Porch with outdoor Fan.
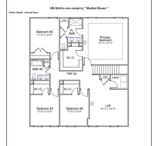
Upstairs, the oversized primary bedroom has a roomy walk-in closet and en-suite bathroom with a raised vanity, quartz countertops, double sinks, and a large walk-in shower. There are three additional bedrooms upstairs that share a full bathroom and plenty of storage. There is a loft space that is great for a teen hangout, movie room, office, gym, or homeschooling.
SPN MLS # 311397
Quick Facts
Time on Site
2 years ago
Property Type
Residential
Year Built
2024
Lot Size
24,829 sqft
Price/Sq.Ft.
$128
Property Details
Schools
Features & Amenities
Location & Map
Map View
Loading map...
Additional Information
Basement
Lot & Land
New Construction
Parking & Garage
H O A & Association
Property Overview
- Two
Listing Agent Information
You Might Also Like...
Interested in selling in Maggie Acres?


