




$347,000
2115 Maggie Acres Road
Chesnee, SC 29323
About This Property
This Property Has Been Sold
This property sold 1 year ago and is no longer available for purchase.
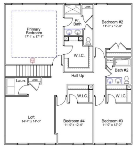
View active listings in Maggie Acres →An all time favorite two-story plan, 4-bedroom 2.5-bathroom home, with as well as a private office near the entryway. The kitchen is attached to both a dining room and an informal eating area, leading into the family room, looking out to a covered porch and an additional concrete space suited for outdoor activities.
Upstairs, the primary bedroom has a roomy walk-in closet and a primary bathroom with a large walk in Shower. Three bedrooms share a full bathroom, and there is a loft space fantastic for family let go time together.
SPN MLS # 315322
Quick Facts
Time on Site
2 years ago
Property Type
Residential
Year Built
2024
Lot Size
28,749 sqft
Price/Sq.Ft.
$125
Property Details
Schools
Features & Amenities
Features:
- Cable Available
- Walk-In Closet(s)
- Ceiling - Smooth
- Solid Surface Counters
- Open Floorplan
Location & Map
Map View
Loading map...
Additional Information
Basement
Security
- Smoke Detector(s)
Lot & Land
- Level
- Underground Utilities
Primary Suite
- Bath - Full
- Shower Only
- Walk-in Closet
- Owner on Main Level
Interior Details
- Carpet
- Vinyl
- Dishwasher
- Disposal
- Cooktop
- Electric Cooktop
- Electric Oven
- Free-Standing Range
- Microwave
- Attic
- Main Fl Master Bedroom
- Tilt-Out
- 1st Floor
- Walk-In
- Cable Available
- Walk-In Closet(s)
- Ceiling - Smooth
- Solid Surface Counters
- Open Floorplan
New Construction
Parking & Garage
- Attached
- Garage
- Garage Door Opener
Exterior Features
- Composition
- Slab
- Vinyl Siding
- Patio
H O A & Association
- Common Area
- Street Lights
Property Overview
- Two
- Craftsman
Utilities & Systems
- Septic Tank
- Central Air
- Forced Air
- Available
Listing Agent Information
You Might Also Like...
Interested in selling in Maggie Acres?

