




$405,000
9817 Bayview Parkway
Charlotte, NC 28216
About This Property
This Property Has Been Sold
This property sold 2 years ago and is no longer available for purchase.
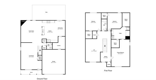
View active listings in Mcintyre →Come fall in love with the resort-like lifestyle of McIntyre community. This stunning updated home offers amazing amenities: a pool, clubhouse, playground, and walking trails. The grand open floor plan makes this spacious 3304 SF a Dream Home.
The large great room with a cozy fireplace is open to the heart of the home, the spacious kitchen with an abundance of cabinets, a huge walk-in pantry, new endless Quartz countertops & electric cooktops. Enjoy the massive patio outdoor living space & the charming privacy of the fenced backyard. Escape to the luxurious 24 x 16 primary suite, sitting area, ensuite bath with dual sinks, shower, oversized garden tub, & 2 exceptionally large walk-in closets.
The 20 x 15 loft flexibility makes for a great game room, work-from-home office or easily converted to a 4th bedroom. All secondary bedrooms are very spacious, each with a walk-in closet. New: flooring throughout & professionally painted.
CAR MLS # 218790580
Quick Facts
Time on Site
2 years ago
Property Type
Residential
Year Built
2003
Price/Sq.Ft.
$123
Property Details
Schools
Features & Amenities
Location & Map
Map View
Loading map...
Additional Information
Utilities
- Public Sewer
- Electricity Connected
- Gas
- City
Lot And Land
- Fenced
- Privacy
Agent Contacts
- Palmetto Park Realty Team Fort Mill: 803.548.6123
Interior Details
- Forced Air
- Natural Gas
- Main Level
- Great Room
Exterior Features
- Vinyl
Parking And Garage
- Driveway
- Attached Garage
- Garage Door Opener
Financial Information
Basement And Foundation
- Slab
Zoning And Restrictions
Square Footage And Levels
- Two
Additional C A R Information
IDX information is provided exclusively for consumers' personal, non-commercial use only; it may not be used for any purpose other than to identify prospective properties consumers may be interested in purchasing. Data is deemed reliable but is not guaranteed accurate by the MLS GRID. Use of this site may be subject to an end user license agreement. Based on information submitted to the MLS GRID as of Tue, Aug 20, 2024. All data is obtained from various sources and may not have been verified by broker or MLS GRID. Supplied Open House Information is subject to change without notice. All information should be independently reviewed and verified for accuracy. Properties may or may not be listed by the office/agent presenting the information. Some IDX listings have been excluded from this website. Any use by you of search facilities of data on the site, other than by a consumer looking to purchase real estate, is prohibited. DMCA Notice: Palmetto Park Realty respects the intellectual property rights of others. If you believe that your work has been copied in a way that constitutes copyright infringement, please provide our designated agent with written notice containing the following information: (1) identification of the copyrighted work claimed to have been infringed; (2) identification of the material that is claimed to be infringing; (3) your contact information; (4) a statement that you have a good faith belief that use of the material is not authorized; and (5) a statement that the information in the notification is accurate and you are authorized to act on behalf of the copyright owner. Please send DMCA notices to: [email protected]
You Might Also Like...
Interested in selling in Mcintyre?