
$650,000
970 Fern Avenue
About This Property
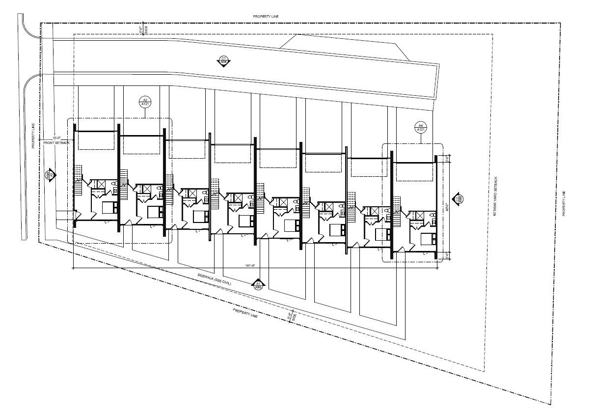
Walking distance from uptown Charlotte, this lot is ready for development in the booming Enderly Park area. Plan have been approved for 8 townhomes and the lot is already subdivided. Architectural plans have been created with units at 2024 sqft, 3 bed, 3.
5 bath, 737sqft rooftop terrace, private fronch porch and backyard facing the woods. Charlotte Engineering, Topographical Surveys, Urban Forestry, Sewer/Water, CDOT and Land Development plans/approvals in place. City Storm Water Mitigation Fee paid.
Quick Facts
Time on Site
5 days ago
Property Type
Land
Property Details
Schools
Features & Amenities
Location & Map
Map View
Loading map...
Additional Information
Utilities
- Public Sewer
- Other - See Remarks
- City
Lot And Land
- Cleared
- Wooded
Agent Contacts
- Palmetto Park Realty Team Fort Mill: 803.548.6123
Interior Details
Waterfront And View
- None
Financial Information
Zoning And Restrictions
Square Footage And Levels
Additional C A R Information
IDX information is provided exclusively for consumers' personal, non-commercial use only; it may not be used for any purpose other than to identify prospective properties consumers may be interested in purchasing. Data is deemed reliable but is not guaranteed accurate by the MLS GRID. Use of this site may be subject to an end user license agreement. Based on information submitted to the MLS GRID as of Tue, Feb 3, 2026. All data is obtained from various sources and may not have been verified by broker or MLS GRID. Supplied Open House Information is subject to change without notice. All information should be independently reviewed and verified for accuracy. Properties may or may not be listed by the office/agent presenting the information. Some IDX listings have been excluded from this website. Any use by you of search facilities of data on the site, other than by a consumer looking to purchase real estate, is prohibited. DMCA Notice: Palmetto Park Realty respects the intellectual property rights of others. If you believe that your work has been copied in a way that constitutes copyright infringement, please provide our designated agent with written notice containing the following information: (1) identification of the copyrighted work claimed to have been infringed; (2) identification of the material that is claimed to be infringing; (3) your contact information; (4) a statement that you have a good faith belief that use of the material is not authorized; and (5) a statement that the information in the notification is accurate and you are authorized to act on behalf of the copyright owner. Please send DMCA notices to: [email protected]