




$426,148
9131 Harwen Lane
Charlotte, NC 28075
About This Property
This Property Has Been Sold
This property sold 3 years ago and is no longer available for purchase.
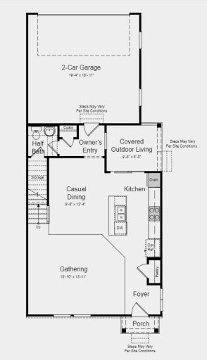
View active listings in Terraces at Farmington →MLS # 3936658 Summer Completion! In the Alpine, cross the threshold from the owner’s entry into an open-concept kitchen and casual dining area. A spacious gathering area at the front of the home, a rear covered porch, and a convenient half bath complete the first floor.
The second floor offers an inviting layout that includes a dedicated study at the top of the stairs. All three bedrooms, including the deluxe owner's suite with large walk-in shower, are found on the second floor along with the conveniently located laundry room and secondary bath. Design options include: white cabinetry, tile backsplash, trash roll out, white quartz countertops.
Owners bath features white cabinetry and quartz counters, large walk in shower with frameless glass and tile upgrades. Structural options added at 9131 Harwen Lane include: tray ceiling at owner's suite, large walk-in shower at owner's bath, study, and gourmet kitchen.
CAR MLS # 78618524
Quick Facts
Time on Site
3 years ago
Property Type
Residential
Year Built
2023
Lot Size
2,308 sqft
Price/Sq.Ft.
$230
Property Details
Schools
Features & Amenities
Features:
- Attic Stairs Pulldown
- Kitchen Island
- Open Floorplan
- Pantry
- Tray Ceiling(s)
- Walk-In Closet(s)
Location & Map
Map View
Loading map...
Additional Information
Utilities
- Public Sewer
- Underground Power Lines
- City
Lot And Land
- Other - See Remarks
Agent Contacts
- Palmetto Park Realty Team Fort Mill: 803.548.6123
Interior Details
- Zoned
- Carpet
- Tile
- Vinyl
- Electric Dryer Hookup
- Upper Level
- Attic Stairs Pulldown
- Kitchen Island
- Open Floorplan
- Pantry
- Tray Ceiling(s)
- Walk-In Closet(s)
- Carbon Monoxide Detector(s)
Exterior Features
- Shingle
- Lawn Maintenance
- Brick Partial
- Fiber Cement
Parking And Garage
- Attached Garage
- Garage Door Opener
Financial Information
Dwelling And Structure
- Transitional
Basement And Foundation
- Slab
Zoning And Restrictions
Square Footage And Levels
- Two
Additional C A R Information
IDX information is provided exclusively for consumers' personal, non-commercial use only; it may not be used for any purpose other than to identify prospective properties consumers may be interested in purchasing. Data is deemed reliable but is not guaranteed accurate by the MLS GRID. Use of this site may be subject to an end user license agreement. Based on information submitted to the MLS GRID as of Wed, Aug 9, 2023. All data is obtained from various sources and may not have been verified by broker or MLS GRID. Supplied Open House Information is subject to change without notice. All information should be independently reviewed and verified for accuracy. Properties may or may not be listed by the office/agent presenting the information. Some IDX listings have been excluded from this website. Any use by you of search facilities of data on the site, other than by a consumer looking to purchase real estate, is prohibited. DMCA Notice: Palmetto Park Realty respects the intellectual property rights of others. If you believe that your work has been copied in a way that constitutes copyright infringement, please provide our designated agent with written notice containing the following information: (1) identification of the copyrighted work claimed to have been infringed; (2) identification of the material that is claimed to be infringing; (3) your contact information; (4) a statement that you have a good faith belief that use of the material is not authorized; and (5) a statement that the information in the notification is accurate and you are authorized to act on behalf of the copyright owner. Please send DMCA notices to: [email protected]
You Might Also Like...
Interested in selling in Terraces at Farmington?