




$200,000
828 Holland Avenue
Charlotte, NC 28206
About This Property
This Property Has Been Sold
This property sold 11 months ago and is no longer available for purchase.
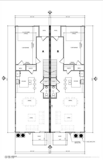
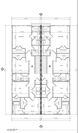
View active listings in Statesville Avenue Terrace →ATTENTION Investors and Builders! 2 Individual 20x60 pad ready lots. Beautiful level lot ready for you to construct your plans or use the seller provided plans.
These plans offer a modern 2 story duet unit with a 1 car-garage, 4 bedrooms and 3.5 bathrooms. The location is in a prime growth area close to Uptown, major amenities, awesome restaurants and all the modern day needs.
Come see if this might be your next investment or building site. The pictures are just an idea of what might work for these lots buyer may choose to place whatever they wish on the lots.
CAR MLS # 267853176
Quick Facts
Time on Site
1 year ago
Property Type
Land
Property Details
Schools
Features & Amenities
Location & Map
Map View
Loading map...
Additional Information
Utilities
- Public Sewer
- Tap Fee Required
- Other - See Remarks
- City
- Tap Fee Required
Lot And Land
- Infill Lot
- Level
- Other - See Remarks
Agent Contacts
- Palmetto Park Realty Team Fort Mill: 803.548.6123
Interior Details
Financial Information
Zoning And Restrictions
Additional C A R Information
- Slab
- Other - See Remarks
IDX information is provided exclusively for consumers' personal, non-commercial use only; it may not be used for any purpose other than to identify prospective properties consumers may be interested in purchasing. Data is deemed reliable but is not guaranteed accurate by the MLS GRID. Use of this site may be subject to an end user license agreement. Based on information submitted to the MLS GRID as of Thu, May 8, 2025. All data is obtained from various sources and may not have been verified by broker or MLS GRID. Supplied Open House Information is subject to change without notice. All information should be independently reviewed and verified for accuracy. Properties may or may not be listed by the office/agent presenting the information. Some IDX listings have been excluded from this website. Any use by you of search facilities of data on the site, other than by a consumer looking to purchase real estate, is prohibited. DMCA Notice: Palmetto Park Realty respects the intellectual property rights of others. If you believe that your work has been copied in a way that constitutes copyright infringement, please provide our designated agent with written notice containing the following information: (1) identification of the copyrighted work claimed to have been infringed; (2) identification of the material that is claimed to be infringing; (3) your contact information; (4) a statement that you have a good faith belief that use of the material is not authorized; and (5) a statement that the information in the notification is accurate and you are authorized to act on behalf of the copyright owner. Please send DMCA notices to: [email protected]
You Might Also Like...
Interested in selling in Statesville Avenue Terrace?