




$288,000
7114 Galago Street 35
Charlotte, NC 28216
About This Property
This Property Has Been Sold
This property sold 3 months ago and is no longer available for purchase.
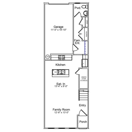
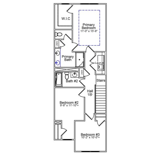
View active listings in Lakeview Village →Discover the charm of this boutique townhome community built by Mungo Homes, a leader in quality craftsmanship & luxury design. This beautiful two-story townhome features 3 bedrooms, 2.5 baths, & a rear-entry one-car garage, offering an open-concept layout w/ stylish upgrades finishes throughout.
The main floor boasts luxury vinyl plank flooring, creating a seamless flow through the bright & airy living spaces. The chef’s kitchen is a standout, featuring a large sitting island w/ granite countertop, white cabinetry, tile backsplash, pendant lighting, & SS electric appliances! Upstairs, the spacious primary suite impresses w/ a 10' boxed tray ceiling, generous walk-in closet, & a en suite bath w/ a quartz-topped dual vanity & a tiled walk-in shower.
Two additional bedrooms, a full bath, & a convenient laundry closet complete the second level. Located just minutes from Uptown Charlotte, the airport, & shopping, Lakeview Village offers the perfect blend of style, comfort, & convenience. Property has completed construction and is ready for move-in.
CAR MLS # 281425592
Quick Facts
Time on Site
7 months ago
Property Type
Residential
Year Built
2025
Price/Sq.Ft.
$198
Property Details
Schools
Features & Amenities
Features:
- Attic Stairs Pulldown
- Kitchen Island
- Open Floorplan
- Walk-In Closet(s)
- Walk-In Pantry
Location & Map
Map View
Loading map...
Additional Information
Utilities
- Public Sewer
- Cable Available
- City
Lot And Land
Agent Contacts
- Palmetto Park Realty Team Fort Mill: 803.548.6123
Interior Details
- Central
- Heat Pump
- Carpet
- Vinyl
- Electric Dryer Hookup
- Laundry Closet
- Upper Level
- Washer Hookup
- Attic Stairs Pulldown
- Kitchen Island
- Open Floorplan
- Walk-In Closet(s)
- Walk-In Pantry
Exterior Features
- Architectural Shingle
- In-Ground Irrigation
- Lawn Maintenance
- Vinyl
Parking And Garage
- Attached Garage
- Garage Door Opener
- Garage Faces Rear
Financial Information
Dwelling And Structure
- Transitional
Basement And Foundation
- Slab
Zoning And Restrictions
Square Footage And Levels
- Two
Additional C A R Information
IDX information is provided exclusively for consumers' personal, non-commercial use only; it may not be used for any purpose other than to identify prospective properties consumers may be interested in purchasing. Data is deemed reliable but is not guaranteed accurate by the MLS GRID. Use of this site may be subject to an end user license agreement. Based on information submitted to the MLS GRID as of Wed, Feb 18, 2026. All data is obtained from various sources and may not have been verified by broker or MLS GRID. Supplied Open House Information is subject to change without notice. All information should be independently reviewed and verified for accuracy. Properties may or may not be listed by the office/agent presenting the information. Some IDX listings have been excluded from this website. Any use by you of search facilities of data on the site, other than by a consumer looking to purchase real estate, is prohibited. DMCA Notice: Palmetto Park Realty respects the intellectual property rights of others. If you believe that your work has been copied in a way that constitutes copyright infringement, please provide our designated agent with written notice containing the following information: (1) identification of the copyrighted work claimed to have been infringed; (2) identification of the material that is claimed to be infringing; (3) your contact information; (4) a statement that you have a good faith belief that use of the material is not authorized; and (5) a statement that the information in the notification is accurate and you are authorized to act on behalf of the copyright owner. Please send DMCA notices to: [email protected]
You Might Also Like...
Interested in selling in Lakeview Village?