




$467,990
5051 Westmead Lane
Charlotte, NC 28262
About This Property
This Property Has Been Sold
This property sold 8 months ago and is no longer available for purchase.
View active listings in Senata at Research Park →MLS#4245022 REPRESENTATIVE PHOTOS ADDED. New Construction - October Completion! The Vail II in Senata at Research Park, is a stylish three-story townhome that blends comfort, charm, and smart design.
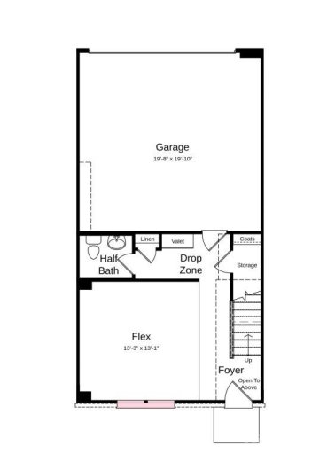
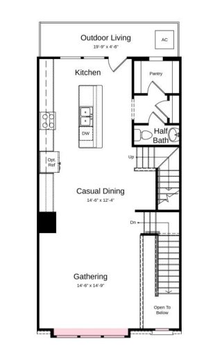
On the first floor, you'll find a flexible room that works as a home office, gym, or cozy den, plus a half bath, coat closet, and easy access to your 2-car garage. Head upstairs to the heart of the home, where the kitchen, casual dining, and gathering room come together in one bright, open space. A nearby powder room adds convenience, and the outdoor deck is perfect for fresh air or entertaining.
The third floor is your personal retreat with three bedrooms, including a dreamy primary suite with a tray ceiling, spa-inspired shower, dual sinks, and a generous walk-in closet. A secondary bath, laundry room, and plenty of storage throughout make daily living easy and organized. Structural options added include: gourmet kitchen, and shower ledge at primary bath.
CAR MLS # 274199932
Quick Facts
Time on Site
1 year ago
Property Type
Residential
Year Built
2025
Price/Sq.Ft.
$244
Property Details
Schools
Features & Amenities
Features:
- Entrance Foyer
- Kitchen Island
- Open Floorplan
- Pantry
- Split Bedroom
- Storage
- Walk-In Closet(s)
- Other - See Remarks
Location & Map
Map View
Loading map...
Additional Information
Utilities
- Public Sewer
- Cable Available
- Natural Gas
- Underground Utilities
- City
Lot And Land
- None
Agent Contacts
- Palmetto Park Realty Team Fort Mill: 803.548.6123
Interior Details
- Electric
- Zoned
- Carpet
- Laminate
- Tile
- Upper Level
- Entrance Foyer
- Kitchen Island
- Open Floorplan
- Pantry
- Split Bedroom
- Storage
- Walk-In Closet(s)
- Other - See Remarks
- Carbon Monoxide Detector(s)
- Smoke Detector(s)
Exterior Features
- Shingle
- Brick Partial
- Fiber Cement
- Metal
- Deck
Parking And Garage
- Driveway
- Attached Garage
- Garage Door Opener
- Garage Faces Rear
Financial Information
Basement And Foundation
- Slab
Zoning And Restrictions
Square Footage And Levels
- Three
Additional C A R Information
IDX information is provided exclusively for consumers' personal, non-commercial use only; it may not be used for any purpose other than to identify prospective properties consumers may be interested in purchasing. Data is deemed reliable but is not guaranteed accurate by the MLS GRID. Use of this site may be subject to an end user license agreement. Based on information submitted to the MLS GRID as of Fri, Sep 12, 2025. All data is obtained from various sources and may not have been verified by broker or MLS GRID. Supplied Open House Information is subject to change without notice. All information should be independently reviewed and verified for accuracy. Properties may or may not be listed by the office/agent presenting the information. Some IDX listings have been excluded from this website. Any use by you of search facilities of data on the site, other than by a consumer looking to purchase real estate, is prohibited. DMCA Notice: Palmetto Park Realty respects the intellectual property rights of others. If you believe that your work has been copied in a way that constitutes copyright infringement, please provide our designated agent with written notice containing the following information: (1) identification of the copyrighted work claimed to have been infringed; (2) identification of the material that is claimed to be infringing; (3) your contact information; (4) a statement that you have a good faith belief that use of the material is not authorized; and (5) a statement that the information in the notification is accurate and you are authorized to act on behalf of the copyright owner. Please send DMCA notices to: [email protected]
You Might Also Like...
Interested in selling in Senata at Research Park?