




$869,900
2625 Springway Drive
Charlotte, NC 28205
About This Property
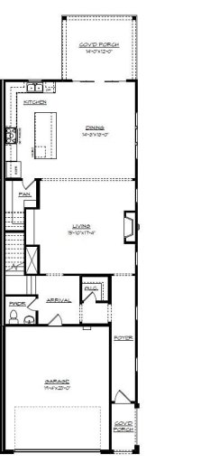
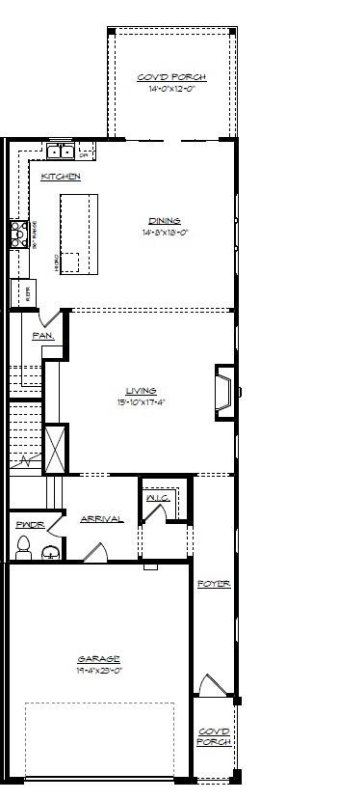
2625 SPRINGWAY DRIVE | The Crane by Vista Homes| Duet Style New Construction- Designed to live like a single family home. Built on a 13-year legacy of excellence, Vista Homes Charlotte presents a sophisticated new duet curated by the renowned Stephanie Calderon Interior Design. This 4BR/3.5 BA residence, featuring the thoughtfully engineered Crane Floor Plan, offers 2,765 sq. ft. of modern elegance designed for the discerning professional.
The striking exterior—a blend of timeless brick and sleek fiber cement—sets the stage for an interior defined by airy refinement. Inside, discover 10-foot ceilings on the main level and 9-foot ceilings above, creating an expansive volume of space. Curated finishes elevate every room, including wide-plank Rev Wood flooring throughout both levels, designer fixtures, and a chef-caliber kitchen equipped with LG SKS premium appliances.
The versatile layout features a serene primary sanctuary and a secondary en suite bedroom, ideal for guests or a sophisticated home office. This home includes a 12x14 covered outdoor living space. Enjoy the ultimate urban lifestyle with no HOA fees, located just 5 minutes from Charlotte Country Club and the vibrant social scene of Plaza Midwood, and less than 15 minutes to Uptown. Schedule your private preview today.
CAR MLS # 292962042
Quick Facts
Time on Site
4 months ago
Property Type
Residential
Year Built
2026
Price/Sq.Ft.
$315
Property Details
Schools
Features & Amenities
Features:
- Attic Stairs Pulldown
- Cable Prewire
- Kitchen Island
- Open Floorplan
- Pantry
- Walk-In Closet(s)
- Walk-In Pantry
Location & Map
Map View
Loading map...
Additional Information
Utilities
- Public Sewer
- Cable Available
- Electricity Connected
- Natural Gas
- Wired Internet Available
- City
Lot And Land
- Cleared
- Level
- None
- None
Agent Contacts
- Palmetto Park Realty Team Fort Mill: 803.548.6123
Interior Details
- Central
- Zoned
- Tile
- Vinyl
- Sliding Doors
- Insulated Window(s)
- Electric Dryer Hookup
- Laundry Room
- Upper Level
- Washer Hookup
- Attic Stairs Pulldown
- Cable Prewire
- Kitchen Island
- Open Floorplan
- Pantry
- Walk-In Closet(s)
- Walk-In Pantry
- Carbon Monoxide Detector(s)
- Smoke Detector(s)
- Gas Log
- Living Room
Exterior Features
- Architectural Shingle
- Brick Partial
- Fiber Cement
- Covered
- Rear Porch
Parking And Garage
- Driveway
- Detached Garage
- Garage Door Opener
- Garage Faces Front
Waterfront And View
- None
Financial Information
Dwelling And Structure
- Transitional
Basement And Foundation
- Slab
Zoning And Restrictions
Square Footage And Levels
- Two
Additional C A R Information
- Room w/ Private Bath
- None
IDX information is provided exclusively for consumers' personal, non-commercial use only; it may not be used for any purpose other than to identify prospective properties consumers may be interested in purchasing. Data is deemed reliable but is not guaranteed accurate by the MLS GRID. Use of this site may be subject to an end user license agreement. Based on information submitted to the MLS GRID as of Fri, May 1, 2026. All data is obtained from various sources and may not have been verified by broker or MLS GRID. Supplied Open House Information is subject to change without notice. All information should be independently reviewed and verified for accuracy. Properties may or may not be listed by the office/agent presenting the information. Some IDX listings have been excluded from this website. Any use by you of search facilities of data on the site, other than by a consumer looking to purchase real estate, is prohibited. DMCA Notice: Palmetto Park Realty respects the intellectual property rights of others. If you believe that your work has been copied in a way that constitutes copyright infringement, please provide our designated agent with written notice containing the following information: (1) identification of the copyrighted work claimed to have been infringed; (2) identification of the material that is claimed to be infringing; (3) your contact information; (4) a statement that you have a good faith belief that use of the material is not authorized; and (5) a statement that the information in the notification is accurate and you are authorized to act on behalf of the copyright owner. Please send DMCA notices to: [email protected]