




$539,000
12416 Sylvan Oak Way
Charlotte, NC 28273
About This Property
This Property Has Been Sold
This property sold 25 days ago and is no longer available for purchase.
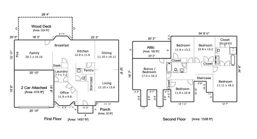
View active listings in The Crossings →Welcome to 12416 Sylvan Oak Way, located in the established Oak Ridge section of The Crossings neighborhood in Charlotte’s desirable Steele Creek area. With just over 3,000 square feet of thoughtfully designed space, this 5-bedroom home with multiple flexible living areas offers comfort and functionality.
The home greets you with a two-story foyer and a layout that feels both open and connected. Just off the entry, there is a dedicated office to the left, ideal for remote work or homework, and a living space to the right that flows into a formal dining room with easy access to the kitchen. The central hub of the home includes granite counters, kitchen island, stainless appliances, and a casual breakfast nook overlooking the backyard. The family room sits just beyond, featuring a brick fireplace with gas logs and a door that leads to the backyard, extending your living space outdoors.
Upstairs, 4 bedrooms plus a 5th bedroom or flex room offer plenty of space for sleeping, play, study, or media needs. The primary suite features a spacious en-suite bath with a frameless tile shower and separate garden tub. A second full bath with tile wall accents add both style and function for the rest of the family. Crown molding throughout the main level adds a touch of refinement, while practical features like a laundry room with sink, ample closet space, walk-in pantry, and an efficient floor plan contribute to everyday ease.
CAR MLS # 293892237
Quick Facts
Time on Site
3 months ago
Property Type
Residential
Year Built
1997
Price/Sq.Ft.
$179
Property Details
Schools
Features & Amenities
Features:
- Attic Stairs Pulldown
- Cable Prewire
- Garden Tub
- Kitchen Island
- Open Floorplan
- Pantry
- Walk-In Pantry
Location & Map
Map View
Loading map...
Additional Information
Utilities
- Public Sewer
- Public
Lot And Land
- Back Yard
- Fenced
- Wood
Agent Contacts
- Palmetto Park Realty Team Fort Mill: 803.548.6123
Interior Details
- Forced Air
- Natural Gas
- Carpet
- Laminate
- Tile
- Laundry Room
- Main Level
- Attic Stairs Pulldown
- Cable Prewire
- Garden Tub
- Kitchen Island
- Open Floorplan
- Pantry
- Walk-In Pantry
- Family Room
- Gas
- Gas Log
Exterior Features
- Architectural Shingle
- Brick Partial
- Hardboard Siding
- Deck
Parking And Garage
- Driveway
- Attached Garage
Financial Information
Basement And Foundation
- Crawl Space
Zoning And Restrictions
Square Footage And Levels
- Two
Additional C A R Information
IDX information is provided exclusively for consumers' personal, non-commercial use only; it may not be used for any purpose other than to identify prospective properties consumers may be interested in purchasing. Data is deemed reliable but is not guaranteed accurate by the MLS GRID. Use of this site may be subject to an end user license agreement. Based on information submitted to the MLS GRID as of Fri, Mar 27, 2026. All data is obtained from various sources and may not have been verified by broker or MLS GRID. Supplied Open House Information is subject to change without notice. All information should be independently reviewed and verified for accuracy. Properties may or may not be listed by the office/agent presenting the information. Some IDX listings have been excluded from this website. Any use by you of search facilities of data on the site, other than by a consumer looking to purchase real estate, is prohibited. DMCA Notice: Palmetto Park Realty respects the intellectual property rights of others. If you believe that your work has been copied in a way that constitutes copyright infringement, please provide our designated agent with written notice containing the following information: (1) identification of the copyrighted work claimed to have been infringed; (2) identification of the material that is claimed to be infringing; (3) your contact information; (4) a statement that you have a good faith belief that use of the material is not authorized; and (5) a statement that the information in the notification is accurate and you are authorized to act on behalf of the copyright owner. Please send DMCA notices to: [email protected]
You Might Also Like...
Interested in selling in The Crossings?