




$1,050,000
1216 Old Farm Road
About This Property
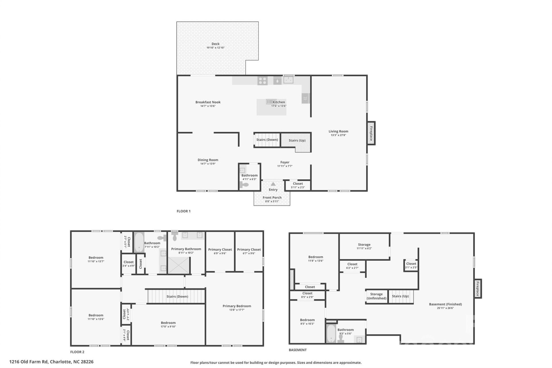
Welcome to 1216 Old Farm Rd, a timeless brick Colonial nestled on a beautifully established .44-acre homesite in one of South Charlotte’s most desirable neighborhoods. Remodeled with a refined, elevated feel, this residence blends classic architecture with modern updates and enduring curb appeal—an exceptional opportunity for buyers seeking space, character, and a premier location.
Inside, the home unfolds across more than 4,000 square feet of light-filled living space designed for both elegant entertaining and everyday comfort. The thoughtfully updated interiors offer multiple gathering areas, including formal and casual living spaces, a warm family room anchored by a fireplace, and well-proportioned rooms throughout that create a sense of sophistication without sacrificing livability. The kitchen sits at the heart of the home, offering seamless flow to dining and living areas and making hosting effortless.
Upstairs, the spacious bedrooms and baths provide privacy and comfort, including a primary suite with room to truly unwind. A rare finished basement—an uncommon feature for this area—adds incredible flexibility and expands the lifestyle potential even further, ideal for a media room, home gym, executive office, or recreation space. Outdoors, the expansive lot provides a serene setting for future outdoor living enhancements, gardens, or entertaining under the trees.
CAR MLS # 295460805
Quick Facts
Time on Site
15 days ago
Property Type
Residential
Year Built
1967
Price/Sq.Ft.
$263
Property Details
Schools
Features & Amenities
Location & Map
Map View
Loading map...
Additional Information
Utilities
- Public Sewer
- City
Lot And Land
Agent Contacts
- Palmetto Park Realty Team Fort Mill: 803.548.6123
Interior Details
- Heat Pump
- Inside
- Washer Hookup
- Living Room
- Recreation Room
Exterior Features
- Brick Full
Parking And Garage
- Driveway
Financial Information
Basement And Foundation
- Exterior Entry
- Finished
- Interior Entry
- Storage Space
- Walk-Out Access
- Slab
Zoning And Restrictions
Square Footage And Levels
- Two
Additional C A R Information
IDX information is provided exclusively for consumers' personal, non-commercial use only; it may not be used for any purpose other than to identify prospective properties consumers may be interested in purchasing. Data is deemed reliable but is not guaranteed accurate by the MLS GRID. Use of this site may be subject to an end user license agreement. Based on information submitted to the MLS GRID as of Wed, Feb 18, 2026. All data is obtained from various sources and may not have been verified by broker or MLS GRID. Supplied Open House Information is subject to change without notice. All information should be independently reviewed and verified for accuracy. Properties may or may not be listed by the office/agent presenting the information. Some IDX listings have been excluded from this website. Any use by you of search facilities of data on the site, other than by a consumer looking to purchase real estate, is prohibited. DMCA Notice: Palmetto Park Realty respects the intellectual property rights of others. If you believe that your work has been copied in a way that constitutes copyright infringement, please provide our designated agent with written notice containing the following information: (1) identification of the copyrighted work claimed to have been infringed; (2) identification of the material that is claimed to be infringing; (3) your contact information; (4) a statement that you have a good faith belief that use of the material is not authorized; and (5) a statement that the information in the notification is accurate and you are authorized to act on behalf of the copyright owner. Please send DMCA notices to: [email protected]

