




$419,500
11512 Erwin Ridge Avenue
Charlotte, NC 28213
About This Property
This Property Has Been Sold
This property sold today and is no longer available for purchase.
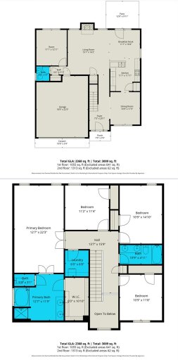
View active listings in Old Stone Crossing →Welcome Home! This spacious and beautifully maintained home offers 4 bedrooms, 2.5 baths, plus a versatile main-level room that can serve as a 5th bedroom or private home office. The main level features durable laminate flooring throughout and has been freshly painted in a neutral color palette, creating a bright and inviting atmosphere. The kitchen is designed for both style and functionality with granite countertops, stainless steel appliances, and updated lighting. Upstairs, the primary suite includes a comfortable sitting area, a large walk-in closet, and an en-suite bathroom. An upstairs laundry room adds everyday convenience. Entertaining is made simple in the fenced backyard with an extended Flagstone patio – perfect for a BBQ & fire pit! With flexible living spaces, thoughtful updates, and generous storage throughout, this home is ready to welcome its next owner! Several updates include: Roof 2022, Hot Water Heater 2022, Guest Bath Mini-Reno 2022, additional landscaping, and Lenox HVAC. Seller is offering a $5,000 carpet replacement concession.
Enjoy the amazing Old Stone Crossing amenities, including two pools, a clubhouse, tennis courts, pickleball courts, a fitness center, and a playground, all in a vibrant, connected community. Just minutes to UNCC, Uptown, interstates, dining, shopping, & schools.
CAR MLS # 297083174
Quick Facts
Time on Site
3 months ago
Property Type
Residential
Year Built
2002
Price/Sq.Ft.
$177
Property Details
Schools
Features & Amenities
Location & Map
Map View
Loading map...
Additional Information
Utilities
- Public Sewer
- City
Lot And Land
- Back Yard
- Fenced
- Wood
Agent Contacts
- Palmetto Park Realty Team Fort Mill: 803.548.6123
Interior Details
- Central
- ENERGY STAR Qualified Equipment
- Zoned
- Carpet
- Laminate
- Tile
- Insulated Door(s)
- Storm Door(s)
- Window Treatments
- Laundry Room
- Upper Level
- Gas Log
- Living Room
Exterior Features
- Architectural Shingle
- Brick Partial
- Vinyl
- Patio
Parking And Garage
- Driveway
- Attached Garage
Financial Information
Basement And Foundation
- Slab
Zoning And Restrictions
Square Footage And Levels
- Two
Additional C A R Information
IDX information is provided exclusively for consumers' personal, non-commercial use only; it may not be used for any purpose other than to identify prospective properties consumers may be interested in purchasing. Data is deemed reliable but is not guaranteed accurate by the MLS GRID. Use of this site may be subject to an end user license agreement. Based on information submitted to the MLS GRID as of Fri, May 22, 2026. All data is obtained from various sources and may not have been verified by broker or MLS GRID. Supplied Open House Information is subject to change without notice. All information should be independently reviewed and verified for accuracy. Properties may or may not be listed by the office/agent presenting the information. Some IDX listings have been excluded from this website. Any use by you of search facilities of data on the site, other than by a consumer looking to purchase real estate, is prohibited. DMCA Notice: Palmetto Park Realty respects the intellectual property rights of others. If you believe that your work has been copied in a way that constitutes copyright infringement, please provide our designated agent with written notice containing the following information: (1) identification of the copyrighted work claimed to have been infringed; (2) identification of the material that is claimed to be infringing; (3) your contact information; (4) a statement that you have a good faith belief that use of the material is not authorized; and (5) a statement that the information in the notification is accurate and you are authorized to act on behalf of the copyright owner. Please send DMCA notices to: [email protected]
You Might Also Like...
Interested in selling in Old Stone Crossing?