




$7,000,000
Iconic Charleston Mansion: Historic Grandeur with Lush Gardens
Charleston, SC 29401
About This Property
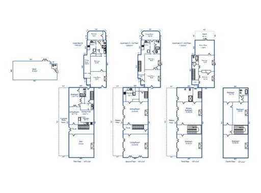
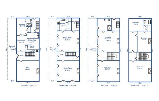
The Sottile-Glover Mansion is an exceptional building, which is listed in the prestigious National Register of Historic Places. The first recorded sale of 81 Rutledge Avenue, then known as 6 Rutledge Street, was in 1775.Estate OverviewThree buildings on 79 & 81 Rutledge AvenueMain building (built in 1826) - a grand residence ideal for entertaining, featuring large rooms and piazzasOriginal house (pre-1775) - now divided into:Four-bedroom long-term rentalTwo-bedroom short-term rentalThird building - former carriage house with three stories, now used for storageAmple parking availablePrime location - Walking distance to MUSC, King Street, Colonial Lake, Broad Street, and the College of CharlestonProperty Description " Carriage house (third building) " Originally housed carriages, a community room for servants, and seven small bedrooms " Middle house (original house) " Built before 1775, constructed using wooden pegs " Now divided into rental units " Main house " Built in 1826 by Dr.
J. Glover with 18-36 inch thick brick walls " Formerly served as the Italian consulate " Original painted ceilings deteriorated, but gold leaf cornices in the living and dining rooms remain " Cornices were custom-made in France to fit windows, mirrors, and French doors Historical Significance " First recorded sale in 1775 - included the building now used as rental property " 1826 - Mansion built by Dr. Joseph Glover (1740-1840), a respected physician and advocate for urban greenery " Later ownership " Arthur Gordon Rose (1794-1880) - President of the Bank of Charleston " Early 1900s - Used as a school for girls, later purchased by the Benjamin Moise family " 1906 - Bought by Giovanni Sottile, Italian Consul, who added Italianate details " Hosted King Victor Emanuel of Italy " 1991 - Passed to Carmelina Sottile Thompson " 1999 - Purchased by the current owners Architectural & Preservation Details " Mid-19th & early 20th century - Italianate embellishments and ironwork added " Front doors feature ornate grille work, similar to those at 1 Broad Street (possibly linked to banker Arthur G.
Rose) " Hand-carved vestibule door with fruit relief, made in England " Kitchen renovated in 2023 - New cabinets and appliances " Original floor plan remains intact - Owners prioritize historic integrity " Structural enhancements " Air conditioners added to rooms without them " Sump pump system installed to prevent flooding " Survived earthquakes, hurricanes, floods, and war Gardens & Atmosphere " Ideal for entertaining - Hosted numerous parties, charity events, and musical gatherings " Lush gardens with over 80-year-old sago palms " Other plantings include loquats, pomegranates, camellias, hydrangeas, and azaleas, cared for by the current owner This historic Charleston estate offers a blend of grandeur, history, and tranquility, preserving its architectural and cultural heritage.
Quick Facts
Time on Site
11 months ago
Property Type
Residential
Year Built
1826
Lot Size
17,424 sqft
Property Details
Schools
Features & Amenities
Location & Map
Map View
Loading map...
Additional Information
Lot And Land
Agent Contacts
Community & H O A
Room Dimensions
Property Details
Exterior Features
Interior Features
Systems & Utilities
Financial Information
Additional Information
- IDX
- -79.942171
- 32.779728
- Crawl Space
- Slab


