




$749,990
703 Minton Road
About This Property
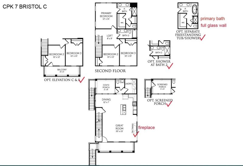
PROPOSED CONSTRUCTION: HOMESITE 7: The Bristol offers a beautifully 1,596 sq ft home that blends sophisticated design with effortless functionality, creating an inviting retreat perfectly suited for modern lifestyles. The main level showcases a open-concept layout that seamlessly connects the living, dining, and kitchen areas. Upstairs, all three bedrooms are thoughtfully positioned to ensure privacy and tranquility.
The owner's suite is tucked away from the main living areas. Two additional bedrooms on the second floor offer versatility, ideal for family members, guests, or a dedicated home office. Double front porches extend the living space outdoors, ideal for morning coffee or evening relaxation.
Thoughtfully designed from the studs to the crown molding this home is truly turn key!
Quick Facts
Time on Site
2 weeks ago
Property Type
Residential
Year Built
2026
Lot Size
2,613 sqft
Property Details
Schools
Features & Amenities
Location & Map
Map View
Loading map...
Additional Information
Lot And Land
Pool And Spa
Agent Contacts
Green Features
Community & H O A
Room Dimensions
Property Details
Exterior Features
Interior Features
Systems & Utilities
Financial Information
Additional Information
- IDX
- -79.977064
- 32.749924
- Raised
