




$892,000
Charleston New Build: Customize Your Dream Home with First-Floor Primary
Charleston, SC 29492
About This Property
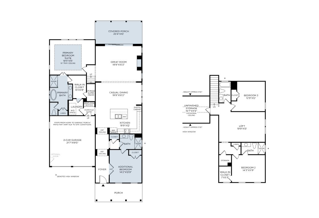
STILL TIME TO PERSONALIZE IN OUR DESIGN STUDIO!! This Layla's stunning covered porch and foyer reveal the lovely open-concept floor plan with views of the kitchen, dining space, and great room. The well-equipped kitchen overlooks a bright breakfast area and spacious great room.
The kitchen features a large center island with breakfast bar, ample counter and cabinet space, and a sizable walk-in pantry. The first-floor primary bedroom showcases a spa-like bathroom with dual vanities, luxe glass-enclosed shower, free standing tub private water closet, and walk-in closet. The second floor features an unfinished storage space, a loft and secondary bedrooms with two full baths.
Quick Facts
Time on Site
6 months ago
Property Type
Residential
Year Built
2026
Lot Size
7,405 sqft
Property Details
Schools
Features & Amenities
Location & Map
Map View
Loading map...
Additional Information
Lot And Land
Agent Contacts
Community & H O A
Room Dimensions
Property Details
Exterior Features
Interior Features
Systems & Utilities
Financial Information
Additional Information
- IDX
- -79.860773
- 32.918433
- Slab


