




$559,990
3447 Six Mile Highway
Central, SC 29630
About This Property
This Property Has Been Sold
This property sold 2 years ago and is no longer available for purchase.
View active listings in Chastain Ridge →**Free Refrigerator, Washer/Dryer and Blinds with home!**
Welcome to the Brand New Community of Chastain Ridge! Centrally located between 6 mile and Clemson in Pickens county. we offer private estate homesites with no homeowners association. One and two story home designs with James Hardie ColorPlus siding and main or second level owner's suites. Enjoy the tranquility of country living while still being only 15 minutes from shopping, restaurants, and entertainment in Clemson, SC! Ready for a day trip to the lake. Chastain Ridge is less than 15 minutes from Lakes Hartwell & Keowee. Under 20 miles from, Downtown Easley, Oconee Memorial Hospital, Southern Wesleyan University, Clemson University and The Walker Golf Course. In a prime location for those who enjoy the convenience of nearby grocery, dining, retail and entertainment but need a private lifestyle.
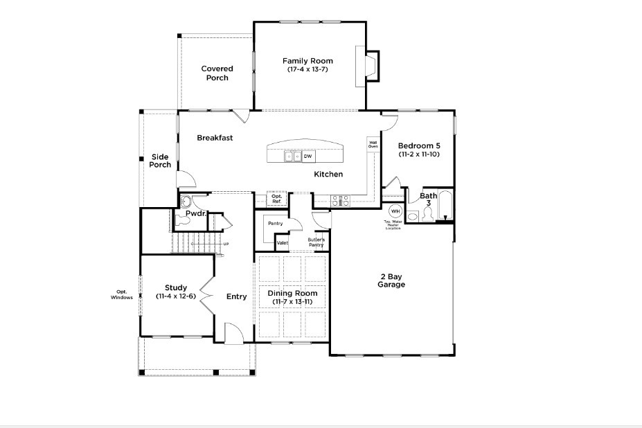
With over 3400 square feet of living space, The Stonefield offers modern living with a touch of traditional charm. Make a statement with a covered front porch that leads into your spacious foyer that is a perfect area to welcome your guests. To the right is your dedicated office space with french doors and to the left is your formal dining room with coffered ceilings. The dining room leads into your butlers pantry for extra counter space and into your gourmet kitchen which features include upgraded white cabinetry, light Quartz countertops, tile backsplash, huge curved island
WUM MLS # 1061968018
Quick Facts
Time on Site
2 years ago
Property Type
Residential
Year Built
2024
Price/Sq.Ft.
$163
Property Details
Schools
Features & Amenities
Location & Map
Map View
Loading map...
Additional Information
Lot & Land
- CityLot
- Subdivision
Community & H O A
Tax Information
Parking & Garage
- Attached
- Garage
Property Details
Exterior Features
- Architectural
- Shingle
- FrontPorch
- Porch
Interior Features
- Carpet
- LuxuryVinyl
- LuxuryVinylPlank
- BuiltInOven
- DoubleOven
- Dishwasher
- GasCooktop
- Disposal
- GasWaterHeater
- Microwave
- PlumbedForIceMaker
- DiningRoom
- Laundry
- Loft
- Office
- TrayCeilings
- CeilingFans
- DualSinks
- Fireplace
- GardenTubRomanTub
- HighCeilings
- BathInPrimaryBedroom
- PullDownAtticStairs
- QuartzCounters
- SmoothCeilings
- SeparateShower
- CableTv
- UpperLevelPrimary
- VaultedCeilings
- WalkInClosets
- Loft
Systems & Utilities
- CentralAir
- Electric
Listing Agent Information
This information is deemed reliable, but not guaranteed. Neither, the Western Upstate Association of REALTORS®, Inc. or Western Upstate Multiple Listing Service of South Carolina Inc., nor the listing broker, nor their agents or subagents are responsible for the accuracy of the information. The buyer is responsible for verifying all information. This information is provided by the Western Upstate Association of REALTORS®, Inc. and Western Upstate Multiple Listing Service of South Carolina, Inc. for use by its members and is not intended for the use for any other purpose. Information is provided for consumers' personal, non-commercial use, and may not be used for any purpose other than the identification of potential properties for purchase. The data relating to real estate for sale on this Web site comes in part from the Broker Reciprocity Program of the Western Upstate Association of REALTORS®, Inc. and the Western Upstate Multiple Listing Service, Inc.
You Might Also Like...
Interested in selling in Chastain Ridge?

