




$232,808
178 Sunny Point Loop
Central, SC 29630
About This Property
This Property Has Been Sold
This property sold 5 years ago and is no longer available for purchase.
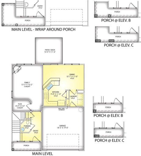
View active listings in Hidden Valley →**This home is under construction and will be completed by mid March. Please note the photos are of a similar home, and will be updated once construction is completed.** NEW Harper B Plan.
Beautiful, newly built home with 4BR/2.5BA and a 2 car garage. This home features a fireplace in the living room, granite counter tops in the kitchen and bathrooms, luxury vinyl tile flooring throughout the downstairs common areas and bathrooms, maple cabinetry throughout, tankless gas water heater, stainless steel appliances, large back deck, advanced framing techniques, thermal envelope air sealing, radiant barrier roof sheathing, energy efficient 14 Seer gas HVAC, electronic garage door opener, a 1-2-10 home warranty from StrucSure Warranty Group and MUCH MORE!
. The home is built by the 3rd largest home builder in the State of SC and a top 100 builder in the Country. Hidden Valley is a great neighborhood with a fantastic location 5 minutes from Central Elementary School, 5 minutes to shopping and restaurants downtown Central, and only about 10 minutes to Clemson University.
WUM MLS # 485347665
Quick Facts
Time on Site
6 years ago
Property Type
Residential
Year Built
2020
Price/Sq.Ft.
$125
Property Details
Schools
Features & Amenities
Location & Map
Map View
Loading map...
Additional Information
Lot & Land
- CityLot
- Subdivision
Community & H O A
- MaintenanceStructure
- StreetLights
Tax Information
Parking & Garage
- Attached
- Garage
- Driveway
- GarageDoorOpener
Property Details
Exterior Features
- Architectural
- Shingle
- Deck
- FrontPorch
- Deck
- Porch
Interior Features
- Carpet
- LuxuryVinyl
- LuxuryVinylTile
- Dishwasher
- GasWaterHeater
- Microwave
- SmoothCooktop
- TanklessWaterHeater
- CeilingFans
- DualSinks
- Fireplace
- GraniteCounters
- GardenTubRomanTub
- BathInPrimaryBedroom
- PullDownAtticStairs
- SmoothCeilings
- SeparateShower
- UpperLevelPrimary
- WalkInClosets
- WalkInShower
Systems & Utilities
- CentralAir
- Electric
- Zoned
- Central
- Gas
- NaturalGas
- Zoned
- ElectricityAvailable
- NaturalGasAvailable
- PhoneAvailable
- SewerAvailable
- UndergroundUtilities
- WaterAvailable
Listing Agent Information
This information is deemed reliable, but not guaranteed. Neither, the Western Upstate Association of REALTORS®, Inc. or Western Upstate Multiple Listing Service of South Carolina Inc., nor the listing broker, nor their agents or subagents are responsible for the accuracy of the information. The buyer is responsible for verifying all information. This information is provided by the Western Upstate Association of REALTORS®, Inc. and Western Upstate Multiple Listing Service of South Carolina, Inc. for use by its members and is not intended for the use for any other purpose. Information is provided for consumers' personal, non-commercial use, and may not be used for any purpose other than the identification of potential properties for purchase. The data relating to real estate for sale on this Web site comes in part from the Broker Reciprocity Program of the Western Upstate Association of REALTORS®, Inc. and the Western Upstate Multiple Listing Service, Inc.
You Might Also Like...
Interested in selling in Hidden Valley?


