




$497,160
133 Osprey Landing
Central, SC 29630
About This Property
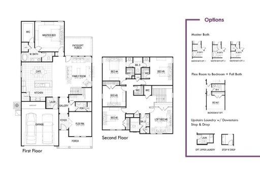
This stunning seven bedroom, 3,160-square-foot home offers space, style, and versatility for large families or multigenerational living. The open concept living and dining areas provide a bright, inviting space for everyday life and entertaining. Tucked away on the main floor, the primary suite is a private retreat with a large walk-in closet and two linen closets, offering ample storage. The gourmet kitchen features quartz countertops, a large center island, and Samsung appliances including a gas cooktop, wall oven and microwave, and stainless hood vent.
The Reedy floor plan is thoughtfully designed with generous storage and a layout suited for a variety of needs, making it perfect for every lifestyle. The home overlooks the neighborhood, providing a pleasant, elevated perspective.
This home also includes insulated garage doors, an 8-foot glass front door, farmhouse style trim, architectural arches, a tankless water heater, stone accents, and energy efficient construction with the ZIP System.
WUM MLS # 1154460642
Quick Facts
Time on Site
1 month ago
Property Type
Residential
Year Built
2026
Property Details
Schools
Features & Amenities
Location & Map
Map View
Loading map...
Additional Information
Lot & Land
- CityLot
- Subdivision
Community & H O A
Tax Information
Parking & Garage
- Attached
- Garage
- Driveway
Property Details
Exterior Features
- Architectural
- Shingle
- Stone
- VinylSiding
Interior Features
- Carpet
- Laminate
- Tile
- Dishwasher
- GasCooktop
- Disposal
- GasOven
- GasRange
- TanklessWaterHeater
- PlumbedForIceMaker
- CeilingFans
- DualSinks
- Fireplace
- HighCeilings
- BathInPrimaryBedroom
- MainLevelPrimary
- PullDownAtticStairs
- QuartzCounters
- SmoothCeilings
- CableTv
- WalkInClosets
- WalkInShower
Listing Information
Systems & Utilities
- CentralAir
- Electric
- Zoned
- HeatPump
- NaturalGas
Listing Agent Information
This information is deemed reliable, but not guaranteed. Neither, the Western Upstate Association of REALTORS®, Inc. or Western Upstate Multiple Listing Service of South Carolina Inc., nor the listing broker, nor their agents or subagents are responsible for the accuracy of the information. The buyer is responsible for verifying all information. This information is provided by the Western Upstate Association of REALTORS®, Inc. and Western Upstate Multiple Listing Service of South Carolina, Inc. for use by its members and is not intended for the use for any other purpose. Information is provided for consumers' personal, non-commercial use, and may not be used for any purpose other than the identification of potential properties for purchase. The data relating to real estate for sale on this Web site comes in part from the Broker Reciprocity Program of the Western Upstate Association of REALTORS®, Inc. and the Western Upstate Multiple Listing Service, Inc.


