




$410,000
117 Osprey Landing
Central, SC 29630
About This Property
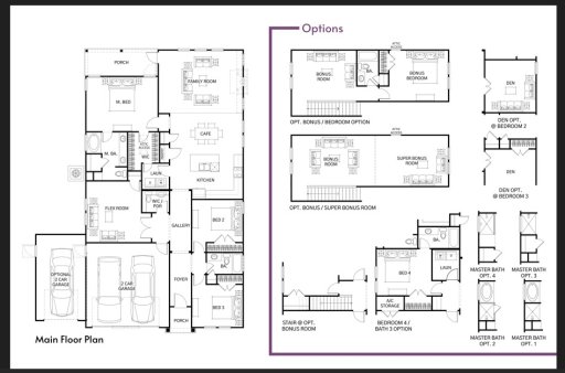
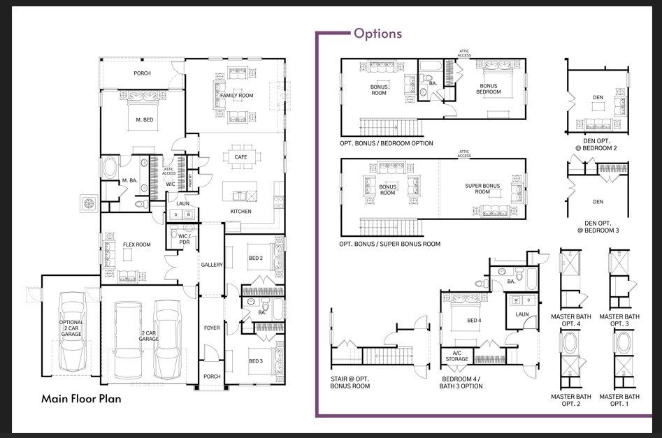
This beautiful home is nestled on a fantastic homesite that overlooks the neighborhood and offering both privacy and picturesque views. It has a beautiful firepit in the back with cobble stone patio for seating around it. Screened in porch and 2" faux wood white blinds though out the home.
The primary suite is conveniently located on the main floor and includes1 large closet and 2 linen closets, providing ample storage. Designed with entertaining and comfortable daily living in mind, the home boasts generously sized living rooms. Located in an excellent school district, this property offers the charm of Central, SC—just minutes from Clemson but without the Clemson taxes.
Residents enjoy easy access to dining and the farmers market within five minutes, and a wide variety of grocery stores, restaurants, and shopping just eight minutes away. Central is a quiet, welcoming community that feels like home, and those who live in Eagle Creek benefit from nearby amenities at Southern Wesleyan University, including a driving range, track, hiking and biking trails, and a soccer field. Price reflects cash purchase or use of Preferred Mortgage Company.
WUM MLS # 1132984231
Quick Facts
Time on Site
7 months ago
Property Type
Residential
Year Built
2025
Property Details
Schools
Features & Amenities
Location & Map
Map View
Loading map...
Additional Information
Lot & Land
- CulDeSac
- CityLot
- Level
- Other
- Subdivision
- SeeRemarks
Community & H O A
- CommonGroundsArea
- ShortTermRentalAllowed
- TrailsPaths
- Sidewalks
Tax Information
Parking & Garage
- Attached
- Garage
- Driveway
Property Details
Exterior Features
- Architectural
- Shingle
- FrontPorch
- Patio
- Stone
- VinylSiding
- Porch
- Patio
Interior Features
- Carpet
- CeramicTile
- LuxuryVinylPlank
- Dishwasher
- ElectricOven
- ElectricRange
- Disposal
- GasOven
- GasRange
- GasWaterHeater
- Microwave
- TanklessWaterHeater
- Laundry
- LivingRoom
- CeilingFans
- DualSinks
- Fireplace
- GraniteCounters
- HighCeilings
- BathInPrimaryBedroom
- MainLevelPrimary
- PullDownAtticStairs
- SmoothCeilings
- ShowerOnly
- WalkInClosets
- WalkInShower
Systems & Utilities
- CentralAir
- ForcedAir
- HeatPump
- NaturalGas
- ElectricityAvailable
- NaturalGasAvailable
- SewerAvailable
- WaterAvailable
- UndergroundUtilities
Listing Agent Information
This information is deemed reliable, but not guaranteed. Neither, the Western Upstate Association of REALTORS®, Inc. or Western Upstate Multiple Listing Service of South Carolina Inc., nor the listing broker, nor their agents or subagents are responsible for the accuracy of the information. The buyer is responsible for verifying all information. This information is provided by the Western Upstate Association of REALTORS®, Inc. and Western Upstate Multiple Listing Service of South Carolina, Inc. for use by its members and is not intended for the use for any other purpose. Information is provided for consumers' personal, non-commercial use, and may not be used for any purpose other than the identification of potential properties for purchase. The data relating to real estate for sale on this Web site comes in part from the Broker Reciprocity Program of the Western Upstate Association of REALTORS®, Inc. and the Western Upstate Multiple Listing Service, Inc.


