




$469,700
5131 Colchester Court
Catawba, NC 28609
About This Property
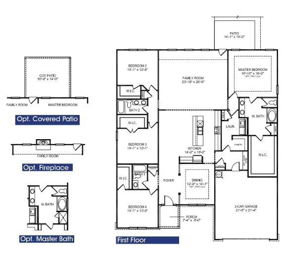
The 2906 floor plan is situated on a one acre corner lot with a 3rd car garage. It has a well appointed layout with beautiful architectural features. The kitchen features a center island with breakfast bar and stainless appliances. The primary is nestled away from the main living area that boasts a private ensuite bathroom. The primary bathroom features dual vanities, separate water closet, tiled shower with bench and a large walk-in closet. The additional three bedrooms are placed on the other side of the home. Step outside to the patio, where you can enjoy outdoor living on a 16 x 14 covered porch. The professionally landscaped yard adds beauty and enhances the overall curb appeal of the home. Coffered ceilings, gridded window panes, electric fireplace and a drop zone along with all the other luxuries says it all. Standard closing costs are paid by the seller when using one of the builders 4 lenders.
Photos are representative and may reflect a staged home.
CAR MLS # 290674003
Quick Facts
Time on Site
4 months ago
Property Type
Residential
Year Built
2026
Price/Sq.Ft.
$162
Property Details
Schools
Features & Amenities
Features:
- Breakfast Bar
- Drop Zone
- Entrance Foyer
- Kitchen Island
- Open Floorplan
- Pantry
- Split Bedroom
- Walk-In Closet(s)
- Walk-In Pantry
Location & Map
Map View
Loading map...
Additional Information
Utilities
- Septic Installed
- Electricity Connected
- County Water
Lot And Land
- Cleared
Agent Contacts
- Palmetto Park Realty Team Fort Mill: 803.548.6123
Interior Details
- Electric
- Heat Pump
- Carpet
- Vinyl
- Insulated Door(s)
- Insulated Window(s)
- Laundry Room
- Main Level
- Breakfast Bar
- Drop Zone
- Entrance Foyer
- Kitchen Island
- Open Floorplan
- Pantry
- Split Bedroom
- Walk-In Closet(s)
- Walk-In Pantry
- Carbon Monoxide Detector(s)
- Smoke Detector(s)
- Great Room
Exterior Features
- Architectural Shingle
- Stone Veneer
- Vinyl
- Covered
- Front Porch
- Rear Porch
Parking And Garage
- Attached Garage
- Garage Door Opener
- Garage Faces Front
Financial Information
Dwelling And Structure
- Ranch
Basement And Foundation
- Slab
Zoning And Restrictions
Square Footage And Levels
- One
Additional C A R Information
IDX information is provided exclusively for consumers' personal, non-commercial use only; it may not be used for any purpose other than to identify prospective properties consumers may be interested in purchasing. Data is deemed reliable but is not guaranteed accurate by the MLS GRID. Use of this site may be subject to an end user license agreement. Based on information submitted to the MLS GRID as of Tue, Feb 3, 2026. All data is obtained from various sources and may not have been verified by broker or MLS GRID. Supplied Open House Information is subject to change without notice. All information should be independently reviewed and verified for accuracy. Properties may or may not be listed by the office/agent presenting the information. Some IDX listings have been excluded from this website. Any use by you of search facilities of data on the site, other than by a consumer looking to purchase real estate, is prohibited. DMCA Notice: Palmetto Park Realty respects the intellectual property rights of others. If you believe that your work has been copied in a way that constitutes copyright infringement, please provide our designated agent with written notice containing the following information: (1) identification of the copyrighted work claimed to have been infringed; (2) identification of the material that is claimed to be infringing; (3) your contact information; (4) a statement that you have a good faith belief that use of the material is not authorized; and (5) a statement that the information in the notification is accurate and you are authorized to act on behalf of the copyright owner. Please send DMCA notices to: [email protected]