




$1,015,000
0000 Sourwood Road
Canton, NC 28716
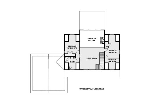
About This Property
This modern cabin is proposed construction. Castaneda Construction is the builder and is well known for quality and energy efficiency. The lot is available separately at MLS#4319778, or another proposed construction at MLS#4319789.
Buyers are not obligated to use this builder or this model home. Estimated 6-10mths from permits. Amazing layered views for miles include Cold Mountain, with potential 180° views.
The panorama gets even better up a story or two! Good solar potential. Underground electric.
CAR MLS # 290430519
Quick Facts
Time on Site
6 months ago
Property Type
Residential
Year Built
2026
Price/Sq.Ft.
$388
Property Details
Schools
Features & Amenities
Location & Map
Map View
Loading map...
Additional Information
Utilities
- Septic Needed
- Other - See Remarks
- Electricity Connected
- Underground Utilities
- Well Needed
- Other - See Remarks
Lot And Land
- Cleared
- Hilly
- Private
- Views
- Wooded
Agent Contacts
- Palmetto Park Realty Team Fort Mill: 803.548.6123
Interior Details
- Heat Pump
- Main Level
- Living Room
- Wood Burning
Exterior Features
- Metal
- Other - See Remarks
- Covered
- Front Porch
- Rear Porch
Parking And Garage
- Driveway
- Attached Garage
Waterfront And View
- Long Range
- Mountain(s)
- Year Round
Financial Information
Basement And Foundation
- Other
- Crawl Space
Zoning And Restrictions
Square Footage And Levels
- Two
Additional C A R Information
- Manufactured Home Not Allowed
- Square Feet
- Other - See Remarks
IDX information is provided exclusively for consumers' personal, non-commercial use only; it may not be used for any purpose other than to identify prospective properties consumers may be interested in purchasing. Data is deemed reliable but is not guaranteed accurate by the MLS GRID. Use of this site may be subject to an end user license agreement. Based on information submitted to the MLS GRID as of Tue, Apr 28, 2026. All data is obtained from various sources and may not have been verified by broker or MLS GRID. Supplied Open House Information is subject to change without notice. All information should be independently reviewed and verified for accuracy. Properties may or may not be listed by the office/agent presenting the information. Some IDX listings have been excluded from this website. Any use by you of search facilities of data on the site, other than by a consumer looking to purchase real estate, is prohibited. DMCA Notice: Palmetto Park Realty respects the intellectual property rights of others. If you believe that your work has been copied in a way that constitutes copyright infringement, please provide our designated agent with written notice containing the following information: (1) identification of the copyrighted work claimed to have been infringed; (2) identification of the material that is claimed to be infringing; (3) your contact information; (4) a statement that you have a good faith belief that use of the material is not authorized; and (5) a statement that the information in the notification is accurate and you are authorized to act on behalf of the copyright owner. Please send DMCA notices to: [email protected]