


$319,900
24 Bessie Luther Boulevard #43
Candler, NC 28715
About This Property
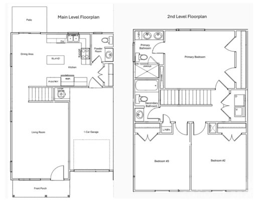
Private, low maintenance living awaits you at Liberty Oaks. For a short period of time, builder is allowing minor upgrades and some customizations. This open concept home features a living area that blends seamlessly into the dining and kitchen areas. The kitchen will feature soft close cabinetry, a ceramic backsplash, granite countertops and upgraded lighting. On the upper level, enjoy your primary bedroom with ensuite as well as two additional bedrooms with access to a full bathroom. Entertain with ease on the private and secluded back patio of this end unit townhome. Liberty Oaks is located just minutes to great restaurants, shops, grocers and is only 15 minutes from downtown Asheville, this home is truly a gem and convenient to everything.
Builder has Model home located at 184 Cherry Springs lane in Asheville, NC. Monday-Friday 11am-5pm Saturday 10am-5pm and Sunday 12pm-5pm.
CAR MLS # 297707195
Quick Facts
Time on Site
23 days ago
Property Type
Residential
Year Built
2026
Price/Sq.Ft.
$235
Property Details
Schools
Features & Amenities
Features:
- Attic Stairs Pulldown
- Kitchen Island
- Open Floorplan
- Pantry
- Walk-In Closet(s)
Location & Map
Map View
Loading map...
Additional Information
Utilities
- Public Sewer
- City
Lot And Land
Agent Contacts
- Palmetto Park Realty Team Fort Mill: 803.548.6123
Interior Details
- Heat Pump
- Carpet
- Laminate
- Insulated Door(s)
- Insulated Window(s)
- Electric Dryer Hookup
- Laundry Closet
- Upper Level
- Washer Hookup
- Attic Stairs Pulldown
- Kitchen Island
- Open Floorplan
- Pantry
- Walk-In Closet(s)
- Carbon Monoxide Detector(s)
- Smoke Detector(s)
Exterior Features
- Architectural Shingle
- Vinyl
- Covered
- Front Porch
- Patio
Parking And Garage
- Attached Garage
- Garage Door Opener
- Garage Faces Front
Financial Information
Basement And Foundation
- Slab
Zoning And Restrictions
Square Footage And Levels
- Two
Additional C A R Information
IDX information is provided exclusively for consumers' personal, non-commercial use only; it may not be used for any purpose other than to identify prospective properties consumers may be interested in purchasing. Data is deemed reliable but is not guaranteed accurate by the MLS GRID. Use of this site may be subject to an end user license agreement. Based on information submitted to the MLS GRID as of Mon, Mar 16, 2026. All data is obtained from various sources and may not have been verified by broker or MLS GRID. Supplied Open House Information is subject to change without notice. All information should be independently reviewed and verified for accuracy. Properties may or may not be listed by the office/agent presenting the information. Some IDX listings have been excluded from this website. Any use by you of search facilities of data on the site, other than by a consumer looking to purchase real estate, is prohibited. DMCA Notice: Palmetto Park Realty respects the intellectual property rights of others. If you believe that your work has been copied in a way that constitutes copyright infringement, please provide our designated agent with written notice containing the following information: (1) identification of the copyrighted work claimed to have been infringed; (2) identification of the material that is claimed to be infringing; (3) your contact information; (4) a statement that you have a good faith belief that use of the material is not authorized; and (5) a statement that the information in the notification is accurate and you are authorized to act on behalf of the copyright owner. Please send DMCA notices to: [email protected]