




$387,637
7096 Luna Mae Ct, Lot 24
Boiling Springs, SC 29316
About This Property
This Property Has Been Sold
This property sold 3 years ago and is no longer available for purchase.
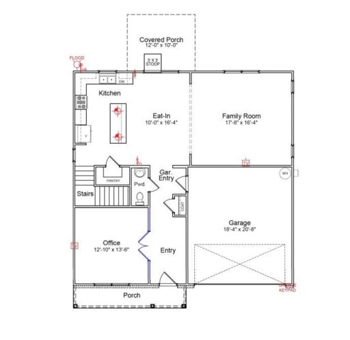
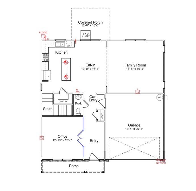
View active listings in Adens Place →This is projected to be completed in October 2022. Our two-story Russell home is 2523 square feet. The home comes with 4 bedrooms and 2.
5 bathrooms. An Office space is available just inside the front door with French doors. Downstairs is an open kitchen, with upgraded cabinets and appliance package, granite countertops, and pendant lights over the island; along with an eating area, and family room with a garden door leading out to your covered porch and large backyard.
A half bath is also downstairs. Upstairs, the primary bedroom has a boxed ceiling, and walk in closet. The en suite bathroom includes another oversized walk in closet, a raised vanity, double sinks, a 5 foot shower with glass doors and linen closet.
SPN MLS # 291963
Quick Facts
Time on Site
4 years ago
Property Type
Residential
Year Built
2022
Price/Sq.Ft.
$154
Property Details
Schools
Features & Amenities
Features:
- Cable Available
- Walk-In Closet(s)
- Ceiling - Smooth
- See Remarks
- Solid Surface Counters
- Open Floorplan
Location & Map
Map View
Loading map...
Additional Information
Basement
Security
- Smoke Detector(s)
Community
- Common Areas
- Street Lights
Lot & Land
- Sloped
Primary Suite
- Double Vanity
- Owner on 2nd level
- Shower Only
- Walk-in Closet
Interior Details
- Carpet
- Vinyl
- Dishwasher
- Disposal
- Microwave
- Electric Cooktop
- Electric Oven
- Bonus
- Loft
- Cable Available
- Walk-In Closet(s)
- Ceiling - Smooth
- See Remarks
- Solid Surface Counters
- Open Floorplan
New Construction
Parking & Garage
- Attached
- Garage Door Opener
Exterior Features
- Composition
- Attic
- Garage
- Crawl Space
- Vinyl Siding
- Patio
- Porch
H O A & Association
Property Overview
- Two
- Craftsman
Utilities & Systems
- Septic Tank
- Central Air
- Forced Air
- Public
Listing Agent Information
You Might Also Like...
Interested in selling in Adens Place?


