


$377,000
7043 New Horizons Lane
Boiling Springs, SC 29316
About This Property
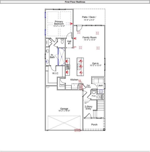
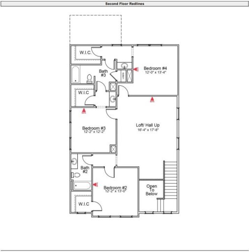
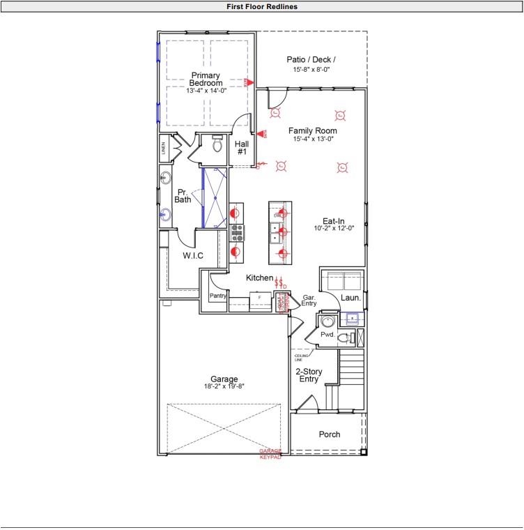
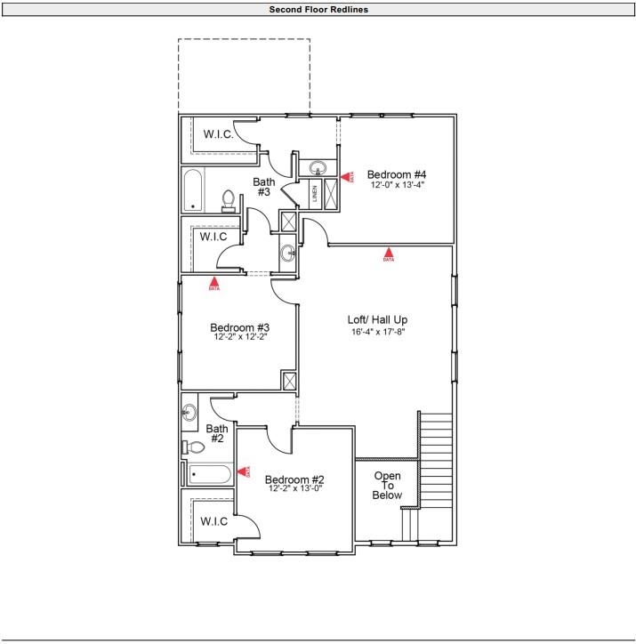
**Ready in June 2026** Stunning Two-Story Home in Boiling Springs – A Perfect Blend of Comfort & Luxury Welcome to this exquisite 4-bedroom, 3.5-bathroom home in the highly sought-after Boiling Springs area, offering an ideal combination of modern elegance and functional design. Boasting 2,400+ square feet of living space, this home provides the perfect balance of private retreat and open, inviting spaces for entertaining.
Key Features Include: • Primary Suite Downstairs: Enjoy the convenience and luxury of having your spacious primary bedroom located on the first floor, featuring a lavish 8-foot walk-in shower with dual shower heads for a spa-like experience. • Gourmet Kitchen: The heart of this home, complete with a gas cooktop, double wall oven, beautiful tile backsplash, and a large island with 3 pendant lights – perfect for both cooking and socializing. • Impressive Details Throughout: Crown molding on the first floor common areas and window casings throughout the home add to the refined feel.
LVP flooring flows seamlessly through the main living areas, while hardwood stairs and open railings on both the first and second floors create an elegant touch. • Convenient Features: A laundry room with a utility sink, irrigation system for the yard, and ample storage throughout. • Location: Situated just minutes from the interstate, providing easy access to nearby shopping, dining, and entertainment, all while maintaining a peaceful and private setting.
SPN MLS # 332596
Quick Facts
Time on Site
3 months ago
Property Type
Residential
Year Built
2026
Lot Size
7,840 sqft
Price/Sq.Ft.
$153
Property Details
Schools
Features & Amenities
Features:
- Cable Available
- Ceilings-Some 9 Ft +
- Attic Stairs Pulldown
- Walk-In Closet(s)
- Ceiling - Smooth
- Solid Surface Counters
- Entrance Foyer
- Second Staircase
- Open Floorplan
- Pantry
Location & Map
Map View
Loading map...
Additional Information
Basement
Security
- Smoke Detector(s)
Lot & Land
Primary Suite
- Bath - Full
- Double Vanity
- Owner on Main Level
- Shower Only
- Walk-in Closet
Interior Details
- Carpet
- Luxury Vinyl
- Gas Cooktop
- Dishwasher
- Disposal
- Microwave
- Wall Oven
- Free-Standing Range
- 1st Floor
- Cable Available
- Ceilings-Some 9 Ft +
- Attic Stairs Pulldown
- Walk-In Closet(s)
- Ceiling - Smooth
- Solid Surface Counters
- Entrance Foyer
- Second Staircase
- Open Floorplan
- Pantry
New Construction
Parking & Garage
- 2 Car Attached
- Garage
Exterior Features
- Architectural
- Paved
- Paved-Concrete
- Slab
- Vinyl Siding
- Porch
H O A & Association
- Common Area
Property Overview
- Two
- Craftsman
Utilities & Systems
- Public Sewer
- Central Air
- Zoned
- Gas Available
- Gas
- Tankless
- Public

