




$349,000
7010 Luna Mae Ct, Lot 3
Boiling Springs, SC 29316
About This Property
This Property Has Been Sold
This property sold 3 years ago and is no longer available for purchase.
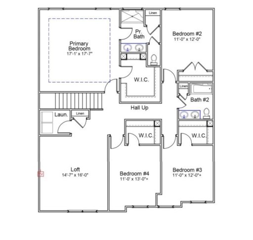
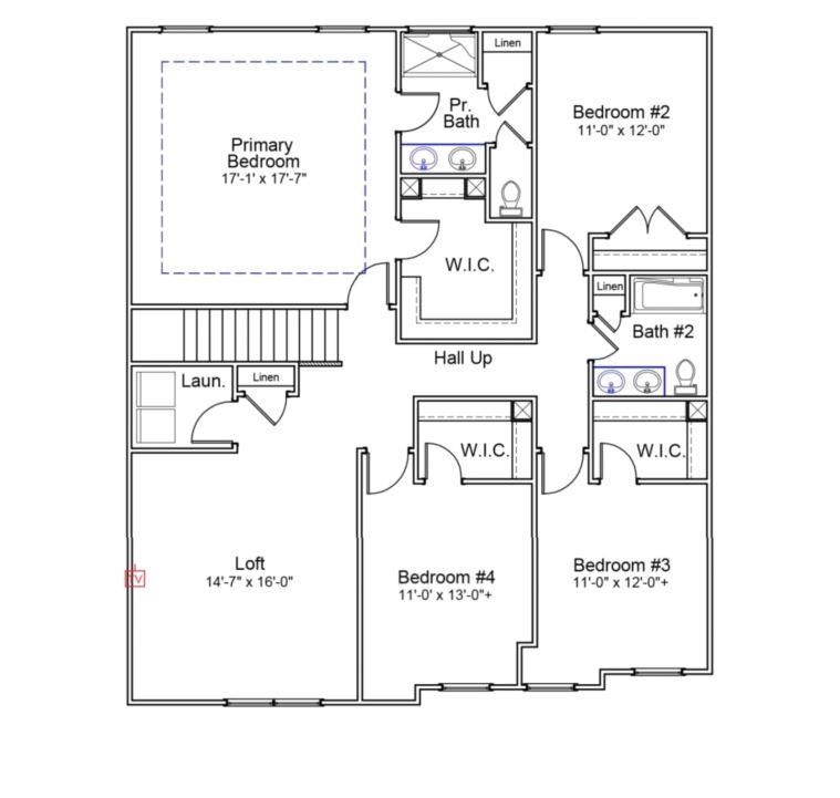
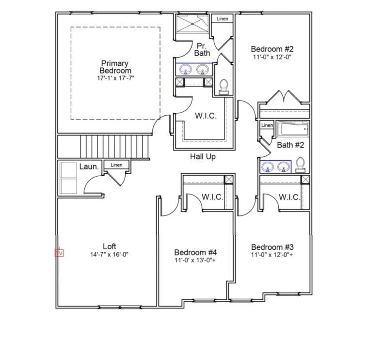
View active listings in Adens Place →Quick Move In!!!!This Telfair floorplan sits on 0.58 acres.
It has an open concept with the living area adjacent to the open kitchen. It has four bedrooms and two and a half baths. The kitchen has a large walk-in pantry, granite countertops, pendant lights, upgraded cabinets, and is attached to both a formal dining room, as well as an informal eat-in area which flows directly into the family room.
Downstairs there is a spacious flex space perfect for a den, office, playroom or living room that is adjacent to the half bath. A garden door from the eat-in area leads outside to the covered porch and large backyard. Outside, there is additional driveway for extra parking.
SPN MLS # 291970
Quick Facts
Time on Site
4 years ago
Property Type
Residential
Year Built
2022
Lot Size
25,264 sqft
Price/Sq.Ft.
$126
Property Details
Schools
Features & Amenities
Features:
- Ceiling Fan(s)
- Cable Available
- Tray Ceiling(s)
- Attic Stairs Pulldown
- Walk-In Closet(s)
- Soaking Tub
- Ceiling - Smooth
- Solid Surface Counters
- Open Floorplan
Location & Map
Map View
Loading map...
Additional Information
Basement
Security
- Smoke Detector(s)
Lot & Land
- Level
- Underground Utilities
Primary Suite
- Bath - Full
- Owner on 2nd level
- Shower Only
- Walk-in Closet
Interior Details
- Carpet
- Vinyl
- Dishwasher
- Disposal
- Microwave
- Cooktop
- Electric Cooktop
- Electric Oven
- Attic
- Bonus
- Loft
- Office/Study
- Tilt-Out
- Ceiling Fan(s)
- Cable Available
- Tray Ceiling(s)
- Attic Stairs Pulldown
- Walk-In Closet(s)
- Soaking Tub
- Ceiling - Smooth
- Solid Surface Counters
- Open Floorplan
New Construction
Parking & Garage
- Attached
- Garage Door Opener
- Garage
- See Remarks
Exterior Features
- Architectural
- Slab
- Vinyl Siding
- Patio
- Porch
H O A & Association
- Common Area
- Street Lights
Property Overview
- Two
- Craftsman
Utilities & Systems
- Septic Tank
- Central Air
- Forced Air
- Available
Listing Agent Information
You Might Also Like...
Interested in selling in Adens Place?


