




$249,000
368 Robin Helton Drive
Boiling Springs, SC 29316
About This Property
This Property Has Been Sold
This property sold 1 year ago and is no longer available for purchase.
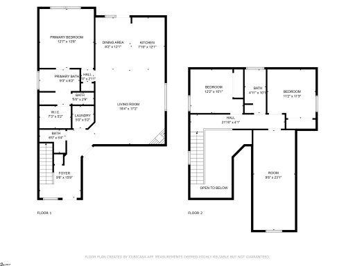
View active listings in Greene Creek →Welcome to Greene Creek in Boiling Springs, where comfort and convenience come together! This Community offers more than a Pool & Park, it is a neighborhood where morning runs and evening strolls become effortless. The inviting two-story layout stretches over 3 bedrooms, 2.
5 baths with a versatile loft perfect for a media room or flex space. The primary bedroom is conveniently located on the main level, providing easy living and extra privacy. Upgraded with new floors and fresh paint throughout, creating a clean feel that’s ready for your personal touch.
The open-concept living space flows into a covered porch and fenced backyard, offering the perfect setting for outdoor gatherings or a safe play area for pets and kids. Located only minutes from shopping, dining, and quick access to I-85, this home is designed for both relaxation and an active Upstate South Carolina lifestyle!
GVL MLS # 1548814
Quick Facts
Time on Site
1 year ago
Property Type
Residential
Lot Size
5,227 sqft
Price/Sq.Ft.
$139
HOA Fees
$425/yr
Property Details
Schools
Features & Amenities
Features:
- 2 Story Foyer
- High Ceilings
- Ceiling Fan(s)
- Granite Counters
- Open Floorplan
- Walk-In Closet(s)
Location & Map
Map View
Loading map...
Additional Information
Community
- Playground
- Pool
Lot & Land
- 1/2 Acre or Less
Tax Information
Interior Details
- Carpet
- Ceramic Tile
- Cooktop
- Dishwasher
- Microwave
- Electric Water Heater
- 1st Floor
- 2 Story Foyer
- High Ceilings
- Ceiling Fan(s)
- Granite Counters
- Open Floorplan
- Walk-In Closet(s)
- Gas Log
Parking & Garage
- Attached
- Paved
Exterior Features
- Architectural
- Attached
- Paved
- Slab
- Front Porch
- Vinyl Siding
H O A & Association
- Common Area Ins.
- Pool
- Street Lights
Property Overview
- Two
- Transitional
Utilities & Systems
- Public Sewer
- Central Air
- Heat Pump
- Public
Listing Agent Information
The information is being provided by Greater Greenville MLS. Information deemed reliable but not guaranteed. Information is provided for consumers' personal, non-commercial use, and may not be used for any purpose other than the identification of potential properties for purchase. Copyright 2025 Greater Greenville MLS. All Rights Reserved.
You Might Also Like...
Interested in selling in Greene Creek?


