




$523,000
478 Persimmon Hill Road
Blythewood, SC 29016
About This Property
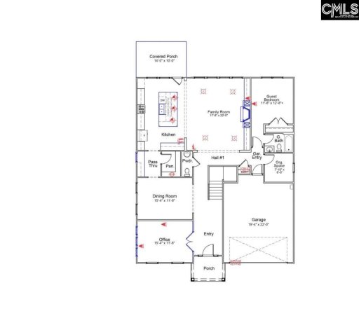
The Yates II is a spacious two-story home with five bedrooms and four-and-a-half baths. The foyer opens to a home office and a formal dining room, leading to a gourmet kitchen with a large island, built-in appliances, gas cooktop, and walk-in pantry and a butler's pantry. The great room includes built ins and fireplace, and a guest bedroom with full bath completes the main floor.
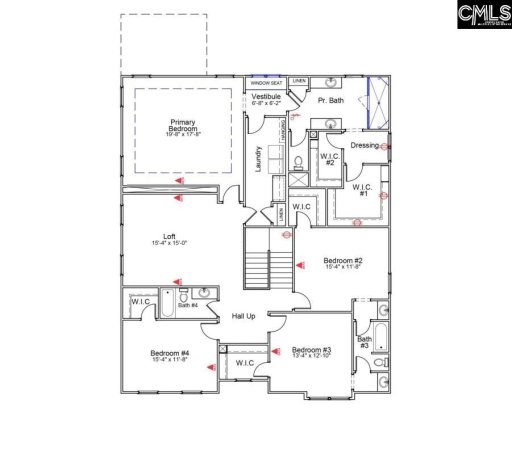
Upstairs, three secondary bedrooms with walk-in closets share two full baths, along with a bonus room and laundry room. The primary suite features dual walk-in closets and a luxurious oversized shower with two heads, and dual vanities. Additional highlights include a covered porch, boxed wood stairs with metal spindles, and durable luxury vinyl plank flooring throughout main living areas.
Come see this beautiful home! Disclaimer: CMLS has not reviewed and, therefore, does not endorse vendors who may appear in listings.
COL MLS # 631445
Quick Facts
Time on Site
18 days ago
Property Type
Residential
Year Built
2025
Lot Size
10,890 sqft
Price/Sq.Ft.
$130
Property Details
Schools
Features & Amenities
Location & Map
Map View
Loading map...
Additional Information
Lot & Land
Room Details
Miscellaneous
Primary Suite
- Closet-His & Her
- Separate Shower
Interior Details
- Counter Cooktop
- Gas
- Dishwasher
- Disposal
- Microwave Built In
Parking & Garage
- Garage Attached
- Front Entry
Exterior Features
H O A & Association
Property Overview
- Traditional
- Craftsman
Utilities & Systems
Listing Agent Information
Details provided by Consolidated MLS and may not match the public record. Learn more. The information is being provided by Consolidated Multiple Listing Service, Inc. Information deemed reliable but not guaranteed. Information is provided for consumers' personal, non-commercial use, and may not be used for any purpose other than the identification of potential properties for purchase. © 2025 Consolidated Multiple Listing Service, Inc. All Rights Reserved.


