




$599,990
7017 Kingfisher Way
About This Property
This Property Has Been Sold
This property sold 2 years ago and is no longer available for purchase.
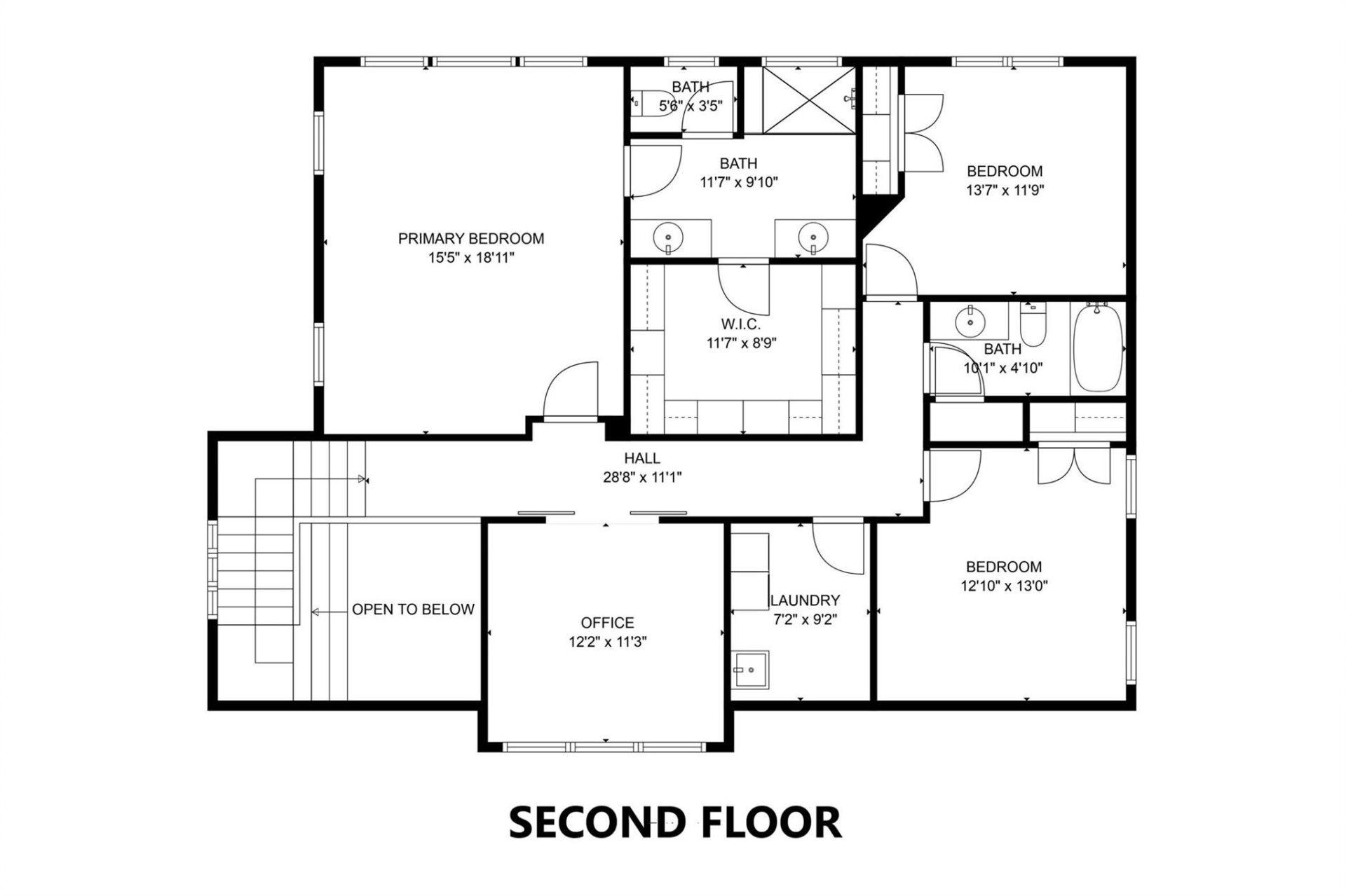
View active listings in McLean Overlake →Back on market, NO fault of seller… McLean Overlake in Belmont, built in 2022!!! 4-bedroom, 3.5 bathroom, offering 2992 sqft is one of Empires most sought out floor plans, The Cambridge.
Featuring upgraded LVP on main floor, two story gorgeous entrance w/custom painted staircase & rails, Dining Room, large Sunroom/Breakfast room, classic gourmet kitchen w/huge island, gas cooktop, quartz countertops w/backsplash, hood vent, bar area, walk in pantry, guest suite on main w/full private bath, & half bath. Upstairs includes spacious master suite offering a spa like bath w/huge shower, custom closet, Laundry, 2 more bedrooms & full bath, multipurpose bonus/office. Outside you will love the covered area w/privacy screening & private yard, no homes in view behind you.
McLean has tons of amenities including pool, walking trails, & more. Quick drive to award winning downtown Belmont, Daniel Stowe Botanical Gardens, & Lake Wylie. Transferable 4.
CAR MLS # 119187447
Quick Facts
Time on Site
2 years ago
Property Type
Residential
Year Built
2022
Price/Sq.Ft.
$201
Property Details
Schools
Features & Amenities
Location & Map
Map View
Loading map...
Additional Information
Utilities
- Public Sewer
- Cable Connected
- Gas
- Underground Utilities
- Wired Internet Available
- City
Lot And Land
Agent Contacts
- Palmetto Park Realty Team Fort Mill: 803.548.6123
Interior Details
- Forced Air
- Natural Gas
- Carpet
- Tile
- Vinyl
- Sliding Doors
- Insulated Window(s)
- Inside
- Upper Level
- Washer Hookup
- Attic Stairs Pulldown
- Smoke Detector(s)
Exterior Features
- Shingle
- Fiber Cement
- Stone Veneer
- Covered
- Front Porch
- Porch
- Rear Porch
Parking And Garage
- Driveway
- Attached Garage
Financial Information
Dwelling And Structure
- Traditional
Basement And Foundation
- Slab
Zoning And Restrictions
Square Footage And Levels
- Two
Additional C A R Information
- Architectural Review
- Modular Not Allowed
IDX information is provided exclusively for consumers' personal, non-commercial use only; it may not be used for any purpose other than to identify prospective properties consumers may be interested in purchasing. Data is deemed reliable but is not guaranteed accurate by the MLS GRID. Use of this site may be subject to an end user license agreement. Based on information submitted to the MLS GRID as of Fri, Jun 14, 2024. All data is obtained from various sources and may not have been verified by broker or MLS GRID. Supplied Open House Information is subject to change without notice. All information should be independently reviewed and verified for accuracy. Properties may or may not be listed by the office/agent presenting the information. Some IDX listings have been excluded from this website. Any use by you of search facilities of data on the site, other than by a consumer looking to purchase real estate, is prohibited. DMCA Notice: Palmetto Park Realty respects the intellectual property rights of others. If you believe that your work has been copied in a way that constitutes copyright infringement, please provide our designated agent with written notice containing the following information: (1) identification of the copyrighted work claimed to have been infringed; (2) identification of the material that is claimed to be infringing; (3) your contact information; (4) a statement that you have a good faith belief that use of the material is not authorized; and (5) a statement that the information in the notification is accurate and you are authorized to act on behalf of the copyright owner. Please send DMCA notices to: [email protected]
You Might Also Like...
Interested in selling in McLean Overlake?


