




$1,150,000
3 Lornelle Place
Asheville, NC 28804
About This Property
This Property Has Been Sold
This property sold 7 months ago and is no longer available for purchase.
View active listings in Lakeview Park →Beautiful move-in-ready home in North Asheville's Lakeview Park community, walk or bike to the Beaver Lake trails! This fantastic 0.53-acre property borders woods in the back, offering a very private feel, but it's just minutes to all that North Asheville and downtown have to offer.
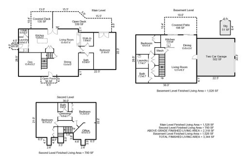
Home features a one-bedroom apartment/flex space in its basement with both interior and separate exterior access. Both kitchens have been completely remodeled and bathrooms have been updated. Spacious, main-level living with an ideal open floor plan, plus a two-car garage and shed that provide an abundance of storage and parking.
Absolutely beautiful landscaping in both the front of the home as well as the fully fenced backyard, perfect for entertaining with its fire pit and large deck. Lornelle Place is a quiet cul-de-sac street with only six homes. See brochure, floor plan, Matterport, and features list for more information!
CAR MLS # 284270845
Quick Facts
Time on Site
9 months ago
Property Type
Residential
Year Built
1996
Price/Sq.Ft.
$344
Property Details
Schools
Features & Amenities
Features:
- Kitchen Island
- Open Floorplan
- Walk-In Closet(s)
Location & Map
Map View
Loading map...
Additional Information
Utilities
- Public Sewer
- Propane
- City
Lot And Land
- Back Yard
- Fenced
- Cul-De-Sac
- Green Area
- Private
- Wooded
Agent Contacts
- Palmetto Park Realty Team Fort Mill: 803.548.6123
Interior Details
- Heat Pump
- Tile
- Wood
- In Basement
- Main Level
- Kitchen Island
- Open Floorplan
- Walk-In Closet(s)
- Radon Mitigation System
- Security System
- Gas
- Living Room
- Propane
Exterior Features
- Architectural Shingle
- Fire Pit
- Storage
- Wood
- Covered
- Deck
Parking And Garage
- Basement
- Driveway
- Garage Faces Side
Financial Information
Basement And Foundation
- Apartment
- Daylight
- Exterior Entry
- Finished
- Interior Entry
- Walk-Out Access
- Walk-Up Access
- Basement
Zoning And Restrictions
Square Footage And Levels
- Two
Additional C A R Information
- Interior Connected
- Separate Entrance
- Separate Kitchen Facilities
- Separate Living Quarters
IDX information is provided exclusively for consumers' personal, non-commercial use only; it may not be used for any purpose other than to identify prospective properties consumers may be interested in purchasing. Data is deemed reliable but is not guaranteed accurate by the MLS GRID. Use of this site may be subject to an end user license agreement. Based on information submitted to the MLS GRID as of Tue, Oct 14, 2025. All data is obtained from various sources and may not have been verified by broker or MLS GRID. Supplied Open House Information is subject to change without notice. All information should be independently reviewed and verified for accuracy. Properties may or may not be listed by the office/agent presenting the information. Some IDX listings have been excluded from this website. Any use by you of search facilities of data on the site, other than by a consumer looking to purchase real estate, is prohibited. DMCA Notice: Palmetto Park Realty respects the intellectual property rights of others. If you believe that your work has been copied in a way that constitutes copyright infringement, please provide our designated agent with written notice containing the following information: (1) identification of the copyrighted work claimed to have been infringed; (2) identification of the material that is claimed to be infringing; (3) your contact information; (4) a statement that you have a good faith belief that use of the material is not authorized; and (5) a statement that the information in the notification is accurate and you are authorized to act on behalf of the copyright owner. Please send DMCA notices to: [email protected]
You Might Also Like...
Interested in selling in Lakeview Park?