




$835,000
460 Big Hill Drive 52
Arden, NC 28704
About This Property
This Property Has Been Sold
This property sold 11 months ago and is no longer available for purchase.
View active listings in Victoria Hills →**Introducing a 2-1 Interest Rate Buydown at Victoria Hills**
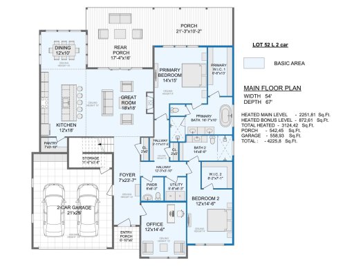
Discover the stunning new community of Victoria Hills in Arden! Experience the expansive and open atmosphere of this beautifully designed home, featuring a seamless flow between the kitchen, dining area, and living room—perfect for family gatherings and entertaining guests.Located just 8 minutes from Biltmore Park, this home offers breathtaking mountain views and a wealth of community amenities, including a tranquil creek, dog parks, a playground, and a welcoming pavilion. Enjoy the convenience and luxury living, make this space your own with lots of versatile area and 2 bedrooms upstairs. This residence boasts unparalleled quality and finishes, featuring high ceilings, custom closets, a floor-to-ceiling tiled fireplace, and an exceptional kitchen equipped with "Energy Star" appliances. Don’t miss this opportunity to own a modern home in a vibrant community—act quickly to secure your dream home today!
CAR MLS # 261689480
Quick Facts
Time on Site
2 years ago
Property Type
Residential
Year Built
2025
Price/Sq.Ft.
$267
Property Details
Schools
Features & Amenities
Features:
- Built-in Features
- Kitchen Island
- Open Floorplan
- Walk-In Closet(s)
- Walk-In Pantry
Location & Map
Map View
Loading map...
Additional Information
Utilities
- Public Sewer
- Natural Gas
- Underground Power Lines
- Underground Utilities
- Wired Internet Available
- City
Lot And Land
- Views
Agent Contacts
- Palmetto Park Realty Team Fort Mill: 803.548.6123
Interior Details
- Central
- Electric
- Forced Air
- Natural Gas
- Zoned
- Laminate
- Tile
- Wood
- Sliding Doors
- Insulated Window(s)
- Electric Dryer Hookup
- Utility Room
- Main Level
- Washer Hookup
- Built-in Features
- Kitchen Island
- Open Floorplan
- Walk-In Closet(s)
- Walk-In Pantry
- Carbon Monoxide Detector(s)
- Radon Mitigation System
- Smoke Detector(s)
- Great Room
Exterior Features
- Shingle
- Wood
- Outdoor Kitchen
- Fiber Cement
- Shingle/Shake
- Stone
- Covered
- Deck
- Front Porch
- Rear Porch
- Screened
Parking And Garage
- Driveway
- Attached Garage
- Garage Faces Front
Waterfront And View
- Long Range
- Mountain(s)
- Year Round
- None
Financial Information
Dwelling And Structure
- Arts and Crafts
Basement And Foundation
- Slab
Zoning And Restrictions
Square Footage And Levels
- Two
Additional C A R Information
IDX information is provided exclusively for consumers' personal, non-commercial use only; it may not be used for any purpose other than to identify prospective properties consumers may be interested in purchasing. Data is deemed reliable but is not guaranteed accurate by the MLS GRID. Use of this site may be subject to an end user license agreement. Based on information submitted to the MLS GRID as of Wed, Jul 9, 2025. All data is obtained from various sources and may not have been verified by broker or MLS GRID. Supplied Open House Information is subject to change without notice. All information should be independently reviewed and verified for accuracy. Properties may or may not be listed by the office/agent presenting the information. Some IDX listings have been excluded from this website. Any use by you of search facilities of data on the site, other than by a consumer looking to purchase real estate, is prohibited. DMCA Notice: Palmetto Park Realty respects the intellectual property rights of others. If you believe that your work has been copied in a way that constitutes copyright infringement, please provide our designated agent with written notice containing the following information: (1) identification of the copyrighted work claimed to have been infringed; (2) identification of the material that is claimed to be infringing; (3) your contact information; (4) a statement that you have a good faith belief that use of the material is not authorized; and (5) a statement that the information in the notification is accurate and you are authorized to act on behalf of the copyright owner. Please send DMCA notices to: [email protected]
You Might Also Like...
Interested in selling in Victoria Hills?