




$329,490
305 Clinkscales Road
Anderson, SC 29624
About This Property
This Property Has Been Sold
This property sold 4 months ago and is no longer available for purchase.
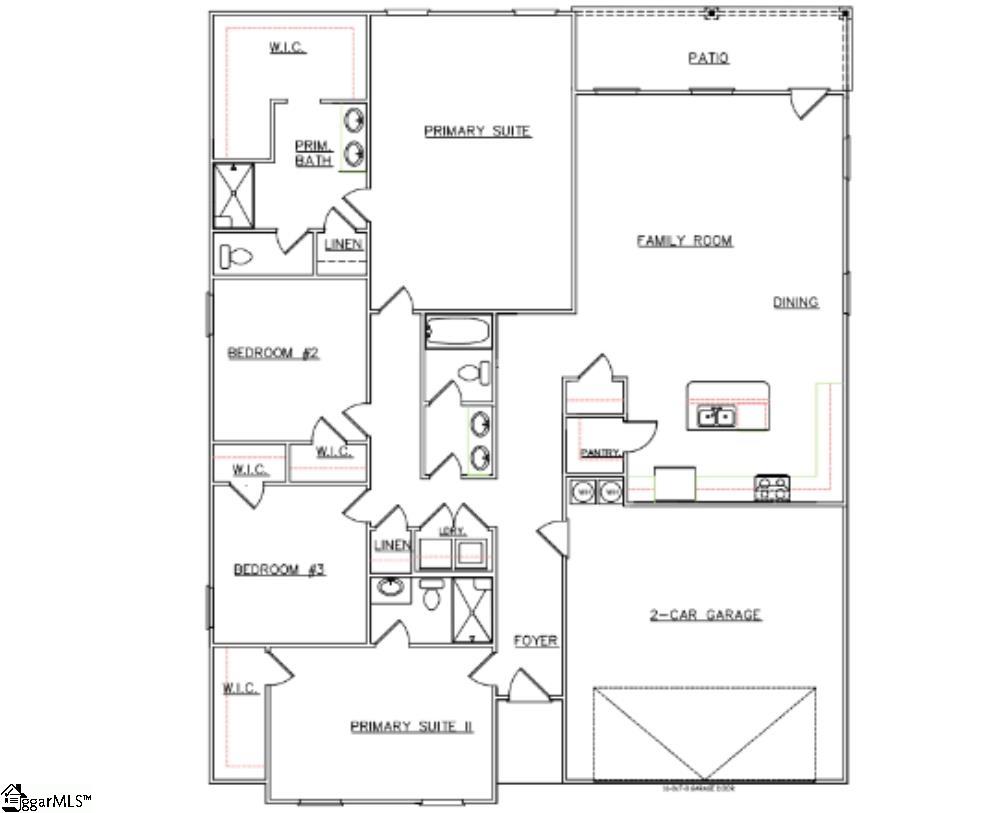
View active listings in Gleneddie Acres →The Shiloh plan. This craftsman style 4 bedroom, 3 bath home is ideal for country living with convenience! The kitchen has stainless steel appliances, walk in pantry, cup washing station, and island.
Easy flow from the kitchen to the open family room with fireplace, great for entertaining guest! This home offers TWO primary suites and an additional two bedrooms. The main primary suite offers double vanity LED & Bluetooth mirrors, separate tub and shower, and smart toilet technology.
Enjoy the gorgeous back patio with a game day porch that is great for a gathering area. Plenty of storage with a two-car garage and attic space. USDA Eligible!
GVL MLS # 1549548
Quick Facts
Time on Site
1 year ago
Property Type
Residential
Year Built
2025
Lot Size
28,749 sqft
Price/Sq.Ft.
$165
Property Details
Schools
Features & Amenities
Location & Map
Map View
Loading map...
Additional Information
Agent Contacts
- Greenville: (864) 757-4000
- Simpsonville: (864) 881-2800
Community & H O A
Room Dimensions
Property Details
- Patio
- Ranch
- Traditional
- Craftsman
Exterior Features
- Vinyl Siding
- Other/See Remarks
- Tilt Out Windows
- Windows-Insulated
- Porch-Covered Back
- Other/See Remarks
Interior Features
- 1st Floor
- Dryer – Electric Hookup
- Washer Connection
- Carpet
- Vinyl
- Dishwasher
- Oven-Self Cleaning
- Other/See Remarks
- Cook Top-Electric
- Oven-Electric
- Microwave-Built In
- Attic
- Garage
- Laundry
- Attic
- Guest Accommodations
- Attic Stairs Disappearing
- Ceiling 9ft+
- Ceiling Fan
- Ceiling Smooth
- Countertops Granite
- Smoke Detector
- Pantry – Walk In
- Radon System
- Smart Systems Pre-Wiring
- Window Trtments-AllRemain
Systems & Utilities
- Central Forced
- Electric
- Heat Pump
- Electric
- Forced Air
- Heat Pump
Showing & Documentation
- Warranty Furnished
- None
- List Agent Present
- Other/See Remarks
- Call Listing Office/Agent
The information is being provided by Greater Greenville MLS. Information deemed reliable but not guaranteed. Information is provided for consumers' personal, non-commercial use, and may not be used for any purpose other than the identification of potential properties for purchase. Copyright 2025 Greater Greenville MLS. All Rights Reserved.
You Might Also Like...
Interested in selling in Gleneddie Acres?

