




$338,417
211 Nautique Court
Anderson, SC 29625
About This Property
This Property Has Been Sold
This property sold 4 years ago and is no longer available for purchase.
View active listings in Smith Mill Landing →The ONLY New Construction Townhomes on Lake Hartwell! COMING THIS WINTER, this beautiful, townhome is conveniently located between Greenville and Atlanta with insanely easy access to I85 and historic, downtown Anderson. Smith Mill Landing provides luxurious, lakeside living in this stunning, gated community.
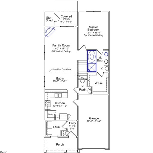
This particular home has the main bedroom on the first floor with a large walk-in closet, tiled shower, separate garden tub and double vanity. The family room features beautiful, hardwood style luxury vinyl plank flooring and a gas fireplace. The kitchen has gorgeous quartz countertops and a white back splash with a stainless steel gas range, walk-in pantry, dishwasher, refrigerator, and built-in microwave.
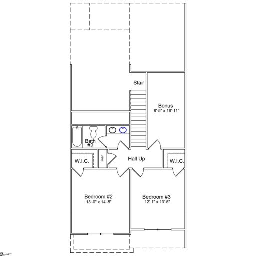
There is an eat-in area and a bar top for meals at home or for entertaining. There is even a 21X12 private garage and a separate storage shed. Upstairs, there is extra space with two bedrooms with large closets, a full hall bath and a bonus room.
GVL MLS # 1444125
Quick Facts
Time on Site
5 years ago
Property Type
Residential
Year Built
2021
Lot Size
2,178 sqft
HOA Fees
$296/mo
Property Details
Schools
Features & Amenities
Features:
- High Ceilings
- Ceiling Fan(s)
- Vaulted Ceiling(s)
- Ceiling Smooth
- Open Floorplan
- Soaking Tub
- Walk-In Closet(s)
- Countertops – Quartz
- Pantry
- Radon System
Location & Map
Map View
Loading map...
Additional Information
Community
- Common Areas
- Gated
- Street Lights
- Recreational Path
- Water Access
- Dock
- Lawn Maintenance
Lot & Land
- 1/2 Acre or Less
- Corner Lot
- Few Trees
- Sprklr In Grnd-Full Yard
- Interior Lot
Tax Information
Interior Details
- Carpet
- Ceramic Tile
- Vinyl
- Other
- Dishwasher
- Disposal
- Free-Standing Gas Range
- Microwave
- Gas Water Heater
- Tankless Water Heater
- 1st Floor
- Walk-in
- Electric Dryer Hookup
- Laundry Room
- High Ceilings
- Ceiling Fan(s)
- Vaulted Ceiling(s)
- Ceiling Smooth
- Open Floorplan
- Soaking Tub
- Walk-In Closet(s)
- Countertops – Quartz
- Pantry
- Radon System
- Gas Log
Parking & Garage
- Attached
- Paved
- Garage Door Opener
Exterior Features
- Architectural
- Attached
- Paved
- Garage Door Opener
- Slab
- Patio
- Front Porch
- Brick Veneer
- Hardboard Siding
H O A & Association
- Maintenance Structure
- Insurance
- Maintenance Grounds
- Street Lights
- Trash
- Other/See Remarks
- Restrictive Covenants
Property Overview
- Two
- Craftsman
Utilities & Systems
- Public Sewer
- Central Air
- Electric
- Natural Gas
- Underground Utilities
- Cable Available
- Public
Listing Agent Information
The information is being provided by Greater Greenville MLS. Information deemed reliable but not guaranteed. Information is provided for consumers' personal, non-commercial use, and may not be used for any purpose other than the identification of potential properties for purchase. Copyright 2025 Greater Greenville MLS. All Rights Reserved.
You Might Also Like...
Interested in selling in Smith Mill Landing?


