




$375,900
New Anderson Home with Resort Amenities and Flexible Living Spaces
Anderson, SC 29621
About This Property
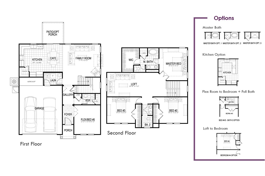
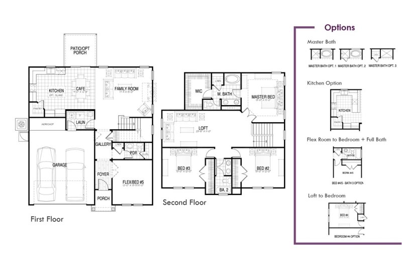
This is PROPOSED NEW CONSTRUCTION. Price is base price prior to upgrades and design selections being added.The Callaham showcases contemporary design and versatile living across 2,298 thoughtfully planned square feet.
The open-concept first floor is designed for connection and everyday living, with a bright family room, spacious dining area, and an airy kitchen, abundant cabinetry, and plentiful storage-perfect for entertaining and gathering with loved ones. A flexible front room easily adapts into a home office, study, or guest space to fit your lifestyle.Upstairs, retreat to a private owner s suite with a spa-inspired bath, complemented by two additional bedrooms, a full bath, and an expansive loft-ideal for a media room, playroom, or second living area.
Need more? The Callaham can accommodate up to five bedrooms without sacrificing comfort or functionality.
WUM MLS # 1137073002
Quick Facts
Time on Site
6 months ago
Property Type
Residential
Property Details
Schools
Features & Amenities
Location & Map
Map View
Loading map...
Additional Information
Lot & Land
- CityLot
- Subdivision
Community & H O A
Tax Information
Parking & Garage
- Attached
- Garage
- Driveway
Property Details
- Contemporary
- Farmhouse
Exterior Features
- Architectural
- Shingle
- StoneVeneer
- VinylSiding
Interior Features
Systems & Utilities
- CentralAir
- ForcedAir
Listing Agent Information
This information is deemed reliable, but not guaranteed. Neither, the Western Upstate Association of REALTORS®, Inc. or Western Upstate Multiple Listing Service of South Carolina Inc., nor the listing broker, nor their agents or subagents are responsible for the accuracy of the information. The buyer is responsible for verifying all information. This information is provided by the Western Upstate Association of REALTORS®, Inc. and Western Upstate Multiple Listing Service of South Carolina, Inc. for use by its members and is not intended for the use for any other purpose. Information is provided for consumers' personal, non-commercial use, and may not be used for any purpose other than the identification of potential properties for purchase. The data relating to real estate for sale on this Web site comes in part from the Broker Reciprocity Program of the Western Upstate Association of REALTORS®, Inc. and the Western Upstate Multiple Listing Service, Inc.


