


$156,990
117 Combine Lane
Anderson, SC 29621
About This Property
This Property Has Been Sold
This property sold 7 years ago and is no longer available for purchase.
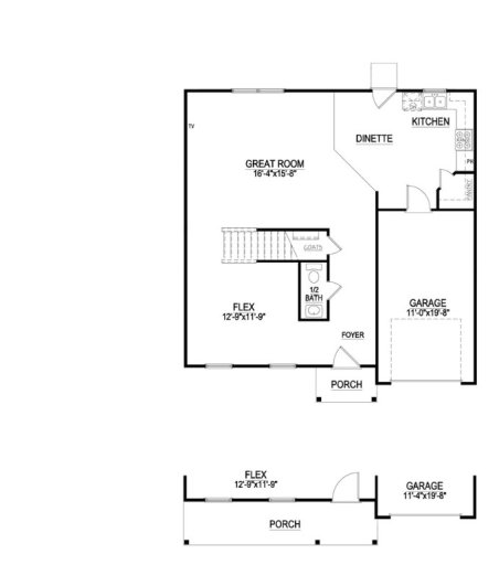
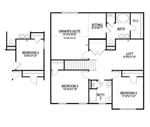
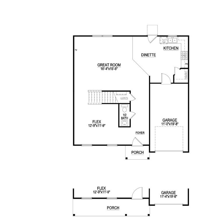
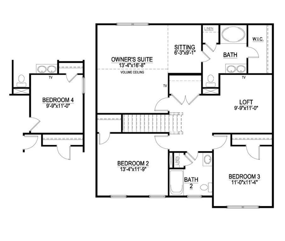
View active listings in Autumn Place Ii →2007-B NEW two-story garage home! The main floor has a flex room that leads around to an open great room, dinette, and kitchen. The 2nd floor features an owner's suite with private bath, sitting room and walk in closet.
There are 2 additional bedrooms upstairs, another full bath and a loft! Completion date is June 2019 Haggle free pricing. No negotiation necessary.
Lowest price guaranteed.
WUM MLS # 425682405
Quick Facts
Time on Site
7 years ago
Property Type
Residential
Year Built
2018
Price/Sq.Ft.
$78
Property Details
Schools
Features & Amenities
Location & Map
Map View
Loading map...
Additional Information
Lot & Land
- CityLot
- Level
- Subdivision
Community & H O A
Tax Information
Parking & Garage
- Attached
- Garage
Property Details
Exterior Features
- Composition
- Shingle
Interior Features
- Carpet
- Vinyl
- Dishwasher
- ElectricOven
- ElectricRange
- BreakfastRoomNook
- BonusRoom
- Loft
- DualSinks
- GardenTubRomanTub
- BathInPrimaryBedroom
- TubShower
- CableTv
- UpperLevelPrimary
- WalkInClosets
- BreakfastArea
- Loft
Systems & Utilities
- CentralAir
- ForcedAir
Listing Agent Information
This information is deemed reliable, but not guaranteed. Neither, the Western Upstate Association of REALTORS®, Inc. or Western Upstate Multiple Listing Service of South Carolina Inc., nor the listing broker, nor their agents or subagents are responsible for the accuracy of the information. The buyer is responsible for verifying all information. This information is provided by the Western Upstate Association of REALTORS®, Inc. and Western Upstate Multiple Listing Service of South Carolina, Inc. for use by its members and is not intended for the use for any other purpose. Information is provided for consumers' personal, non-commercial use, and may not be used for any purpose other than the identification of potential properties for purchase. The data relating to real estate for sale on this Web site comes in part from the Broker Reciprocity Program of the Western Upstate Association of REALTORS®, Inc. and the Western Upstate Multiple Listing Service, Inc.
You Might Also Like...
Interested in selling in Autumn Place Ii?

