




$394,990
Summer Completion: New Craftsman Home with Resort-Style Amenities
About This Property
This Property Has Been Sold
This property sold 6 months ago and is no longer available for purchase.
View active listings in Creeks at Midway →Welcome to Creeks at Midway! New homes in Anderson, SC! Featuring beautiful craftsman-style designs to include James Hardie Colorplus siding with one and two-story options.
Creeks at Midway is a wonderful community in a sought-after area, conveniently located near Midway Elementary School and SC Highway 81.Parks, shopping centers, and restaurants all nearby. Easy access to the rest of the upstate with the North Highway 81 corridor and I-85 justminutes away.
Lake Hartwell, Anderson University, Anderson Mall, and the vibrant North Main Street are all within a 15-minute drive. Under 5minutes from Midway Elementary School, Glenview Middle School and T.L.
WUM MLS # 1111727763
Quick Facts
Time on Site
10 months ago
Property Type
Residential
Year Built
2025
Price/Sq.Ft.
$136
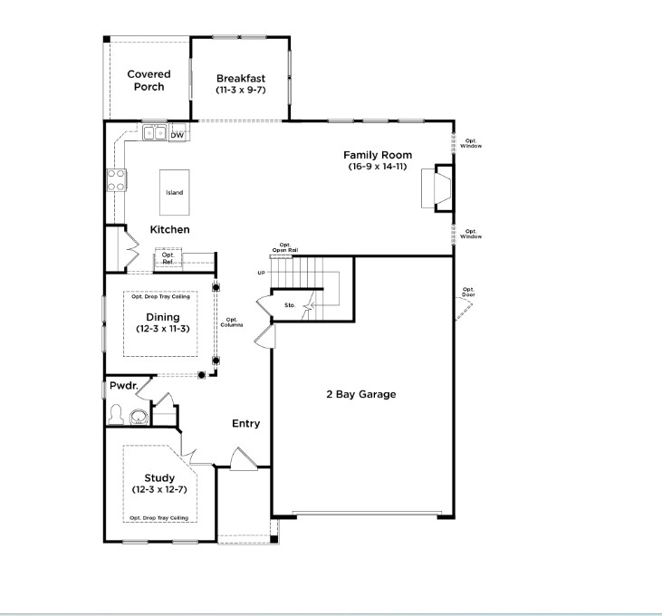
Property Details
Schools
Features & Amenities
Location & Map
Map View
Loading map...
Additional Information
Lot & Land
- CityLot
- Subdivision
Community & H O A
- Pools
- StreetLights
- CommonGroundsArea
- Pool
- TennisCourts
Tax Information
Parking & Garage
- Attached
- Garage
Property Details
Exterior Features
- Architectural
- Shingle
- FrontPorch
- Porch
Interior Features
- Carpet
- LuxuryVinylPlank
- Dishwasher
- Disposal
- GasOven
- GasRange
- GasWaterHeater
- Microwave
- PlumbedForIceMaker
- Loft
- Office
- DualSinks
- Fireplace
- HighCeilings
- BathInPrimaryBedroom
- PullDownAtticStairs
- QuartzCounters
- SmoothCeilings
- ShowerOnly
- CableTv
- UpperLevelPrimary
- WalkInClosets
- Loft
Systems & Utilities
- CentralAir
- Electric
Listing Agent Information
This information is deemed reliable, but not guaranteed. Neither, the Western Upstate Association of REALTORS®, Inc. or Western Upstate Multiple Listing Service of South Carolina Inc., nor the listing broker, nor their agents or subagents are responsible for the accuracy of the information. The buyer is responsible for verifying all information. This information is provided by the Western Upstate Association of REALTORS®, Inc. and Western Upstate Multiple Listing Service of South Carolina, Inc. for use by its members and is not intended for the use for any other purpose. Information is provided for consumers' personal, non-commercial use, and may not be used for any purpose other than the identification of potential properties for purchase. The data relating to real estate for sale on this Web site comes in part from the Broker Reciprocity Program of the Western Upstate Association of REALTORS®, Inc. and the Western Upstate Multiple Listing Service, Inc.
