




$624,000
Lake Hartwell Area New Build! 5 Beds, 3 Car Garage & .69 Acres
Anderson, SC 29621
About This Property
This Property Has Been Sold
This property sold 11 days ago and is no longer available for purchase.
View active listings in Timberland Grove →Lake Hartwell! .69 Acre Homesite!
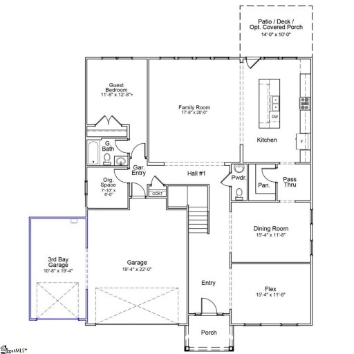
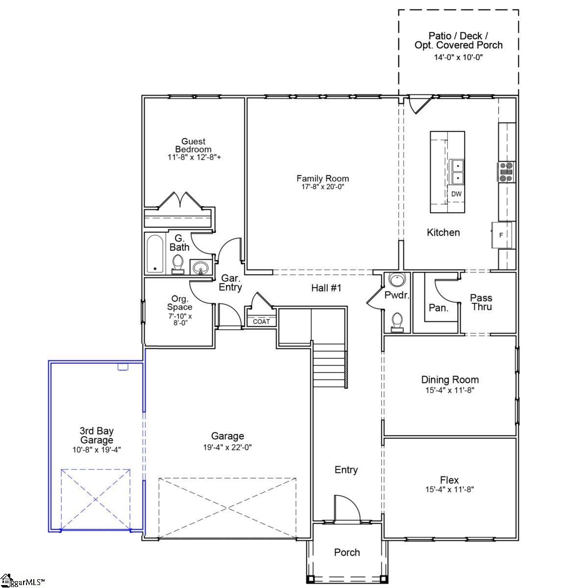
3 Car Garage! Timberland Grove is less than 1 mile to Hwy 85/Exit 21 and within 30 minutes to Downtown Greenville. Close to historic Downtown Anderson with shopping and restaurants and only 13 miles to Clemson University.
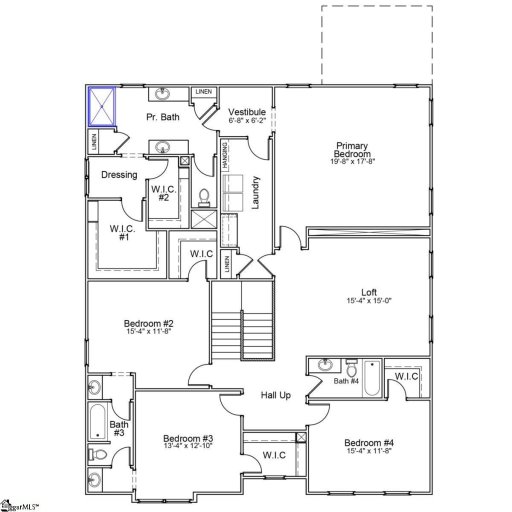
The beautiful Yates II Floor Plan offers an attached 3 car garage, five bedrooms, 4.5 bathrooms, and a large loft and large flex space! The first-floor open plan is great for entertaining with a lovely kitchen that has plenty of counter space and an island that overlooks the great room with a fireplace.
GVL MLS # 1563085
Quick Facts
Time on Site
10 months ago
Property Type
Residential
Year Built
2025
Lot Size
30,056 sqft
Price/Sq.Ft.
$155
HOA Fees
$65/mo
Property Details
Schools
Features & Amenities
Features:
- High Ceilings
- Ceiling Smooth
- Tray Ceiling(s)
- Countertops-Solid Surface
- Open Floorplan
- Walk-In Closet(s)
- Coffered Ceiling(s)
- Countertops – Quartz
- Pantry
Location & Map
Address
1104 Manse Jolly Road Lot 1 Timberland Grove, Anderson, SC 29621
Community
Timberland Grove
Map View
Loading map...
Additional Information
Lot & Land
- 1/2 - Acre
- Few Trees
- Wooded
- Interior Lot
Tax Information
Interior Details
- Carpet
- Luxury Vinyl
- Gas Cooktop
- Dishwasher
- Convection Oven
- Double Oven
- Microwave
- Tankless Water Heater
- Sink
- 2nd Floor
- Walk-in
- Electric Dryer Hookup
- Washer Hookup
- Laundry Room
- High Ceilings
- Ceiling Smooth
- Tray Ceiling(s)
- Countertops-Solid Surface
- Open Floorplan
- Walk-In Closet(s)
- Coffered Ceiling(s)
- Countertops – Quartz
- Pantry
- Gas Log
Parking & Garage
- Attached
- Concrete
Exterior Features
- Architectural
- Attached
- Concrete
- Crawl Space
- Deck
- Front Porch
- Vinyl Siding
- Under Ground Irrigation
H O A & Association
- Restrictive Covenants
Property Overview
- Two
- Traditional
- Craftsman
Utilities & Systems
- Septic Tank
- Central Air
- Natural Gas
- Cable Available
- Public
Listing Agent Information
The information is being provided by Greater Greenville MLS. Information deemed reliable but not guaranteed. Information is provided for consumers' personal, non-commercial use, and may not be used for any purpose other than the identification of potential properties for purchase. Copyright 2025 Greater Greenville MLS. All Rights Reserved.
You Might Also Like...
Interested in selling in Timberland Grove?

